Sparkassen-Immobilien-Gesellschaft mbH

Wohnen an der Sonnhalde

51 new build condominiums

  • Construction has begun
  • Efficiency House 40 EE

Project details

  • Kohlenbacher Talstraße 4, 79183 Waldkirch
  • Condominium
  • €260,000 - €860,000
  • 1 - 4 rooms
  • 34.03 - 125.99 m2
  • Immediately
  • 51
  • Upscale
  • 24232

Features

  • Bathtub
  • Floor-level shower
  • Real wood parquet
  • Fine stone tiles
  • Underfloor heating
  • House utility room
  • Controlled domestic ventilation
  • Open-plan kitchen
  • Branded sanitary ware

Location

Show on map

Further info

Further features:

  • Eligible for funding as a "climate-friendly new building" (KFW)
  • Investors now benefit from the new degressive depreciation rate of 5%!
  • Private bicycle parking space

Purchase price excl. parking space
Underground parking space: €35,000
Underground parking space in the parking lift: €25,000

Residential units

Request prospectus/price list
*Required field

Number of rooms

We treat your data confidentially. By submitting, you agree to the processing of your request in accordance with our privacy policy and general terms & conditions for customers.

Project description

Image new build property Wohnen an der Sonnenhalde Waldkirch
Image new build property condominiums Wohnen an der Sonnenhalde Waldkirch

Wohnen on the
Sonnenhalde

The fanned-out structures connect with the environment

The meadow on which the settlement is to be built is framed in the west by an open and well-developed green area and in the east by a forest area.

The eight fanned-out buildings of the settlement are playfully distributed across the south-facing hillside property. Apparently random, but deliberately designed, all of their apartments face the valley and create generous views of nature and the forest.

The buildings are placed in such a way that they make optimal use of the terrain, are terraced and a large part of the volume is integrated into the mountain.

They face the valley with 4 floors, the first two of which are embedded in the hillside and give access to the side gardens and green areas. As a result, only two storeys are visible on the mountain side. This benefits the rows behind, which often look over the roofs of the front houses.

Due to the many terraces on the slope, there are several wing apartments with private gardens on the first three floors. This creates access to the outside and a connection to the surrounding greenery.

Image new build property condominiums Wohnen an der Sonnenhalde Waldkirch

The houses look down into the valley

The outdoor areas are planned in such a way that the surrounding nature develops between the houses and connects with the gardens. A settlement that respects its surroundings and gives nature the space to connect with the new structure. The mixture of 3 open-plan communal courtyards and the private gardens in front of the apartments offers people in the development places to meet, garden and relax. The outdoor areas generously create a pleasant distance between the houses and take up the fanned-out structure in the gardens. From the courtyards you can reach the various bicycle garages and the entrances on the backs of the buildings without barriers. A neighborhood square in the upper area of ​​the settlement can develop as a meeting place and community space and offers a space for everyone who would like to meet. If you walk through the paths and play areas and explore the green area of ​​the quarter, you will always find new places to be and views between the houses down into the landscape.

Refuge habitats for bats, lizards and other species were set up in the adjacent forest during the construction period. These dry stone walls, paths and clearings will later be available to the residents as recreational areas and will be connected to the open spaces of the settlement. The conviction of a long-term sustainable concept resonates down to the smallest detail.

Image new build property condominiums Wohnen an der Sonnenhalde Waldkirch

Materials

The choice of material for this project is inspired by the environment on the one hand, but is also decisive for a high quality of life, sustainable construction and the technical implementation due to important parameters.

The solid construction of the building enables high demands on sound insulation and a free layout with few supports. In addition, the houses and underground car parks can be technically optimally placed in the mountain.

The wooden windows, the use of sustainable insulation made of wood fibers and the cladding with vertical wooden slats refer to the surrounding forest and strengthen the sustainable overall concept. In order to achieve a uniform appearance on the facade and to protect the material from the weather, the surface of the wood is treated with a natural lye, giving it a subtle green tint. The combination of the complementary colors of light green and natural red of the brick facades in the central and lateral areas of the houses emphasizes their layout and the zones around them.

The concept is completed with the metallic accents of the railing rods and the dark fabric of the sun blinds.

Image new build property Wohnen an der Sonnenhalde Waldkirch
Image new build property condominiums Wohnen an der Sonnenhalde Waldkirch

Outfitting
and quality

The fanned-out structures connect with the environment

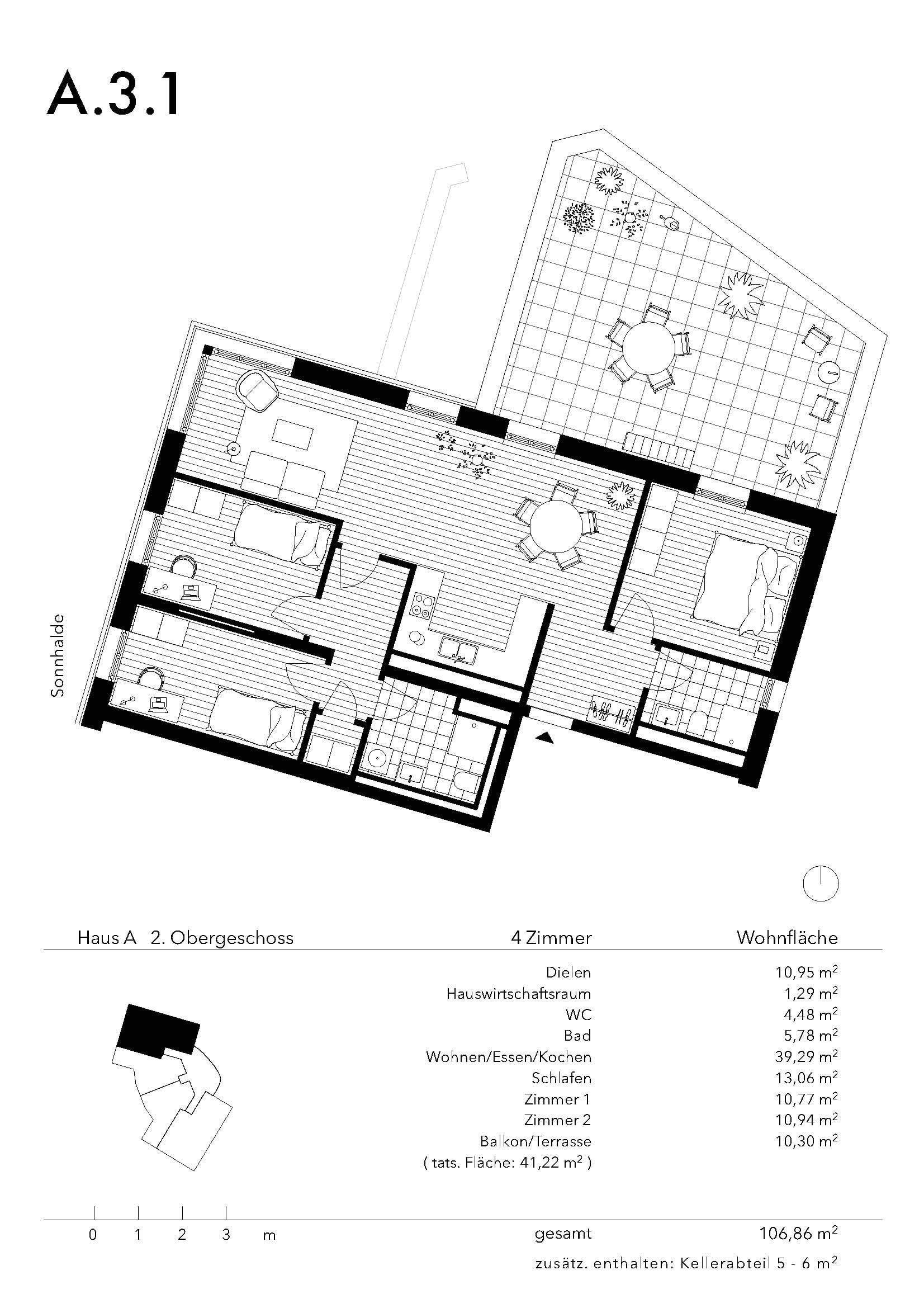
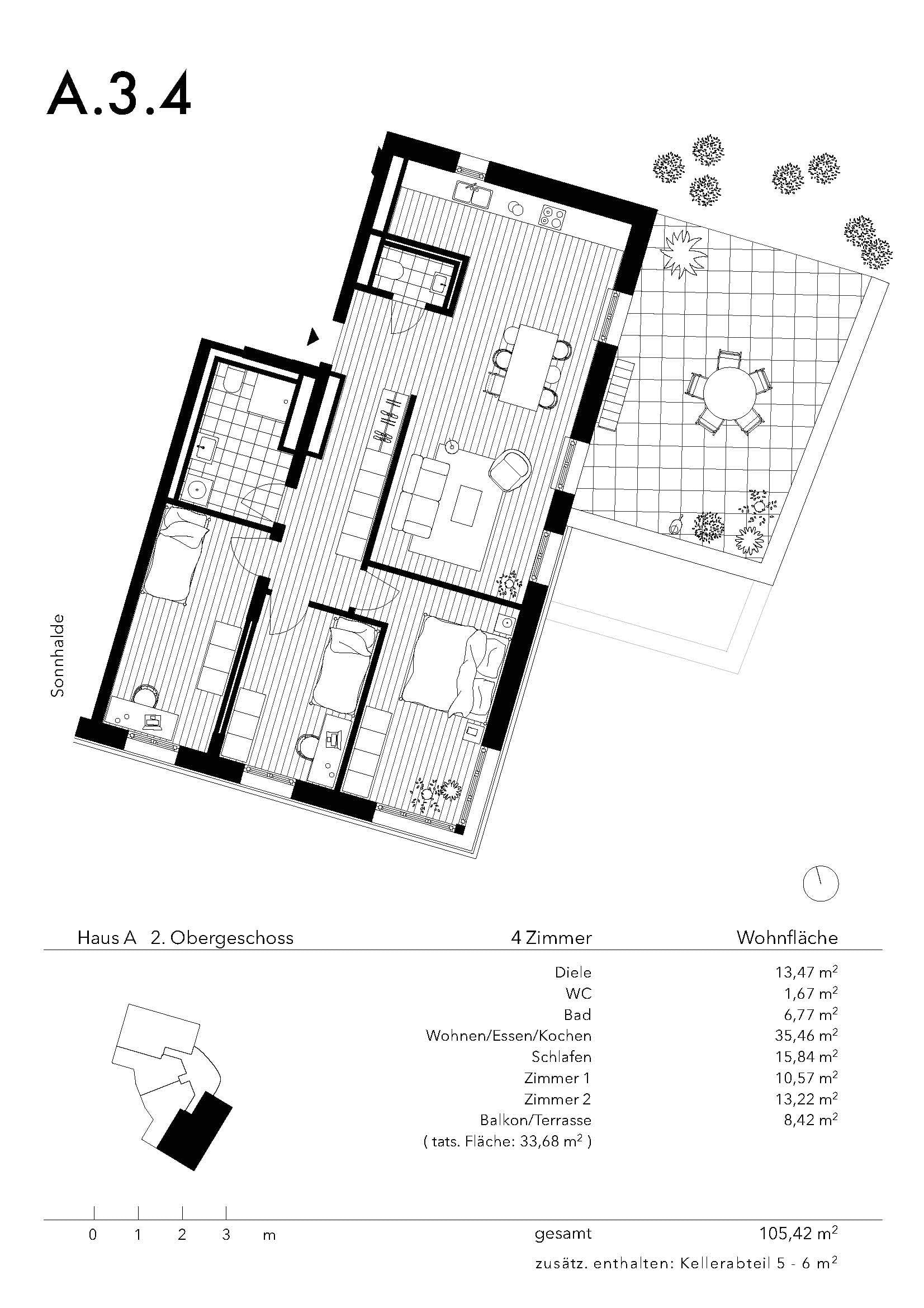
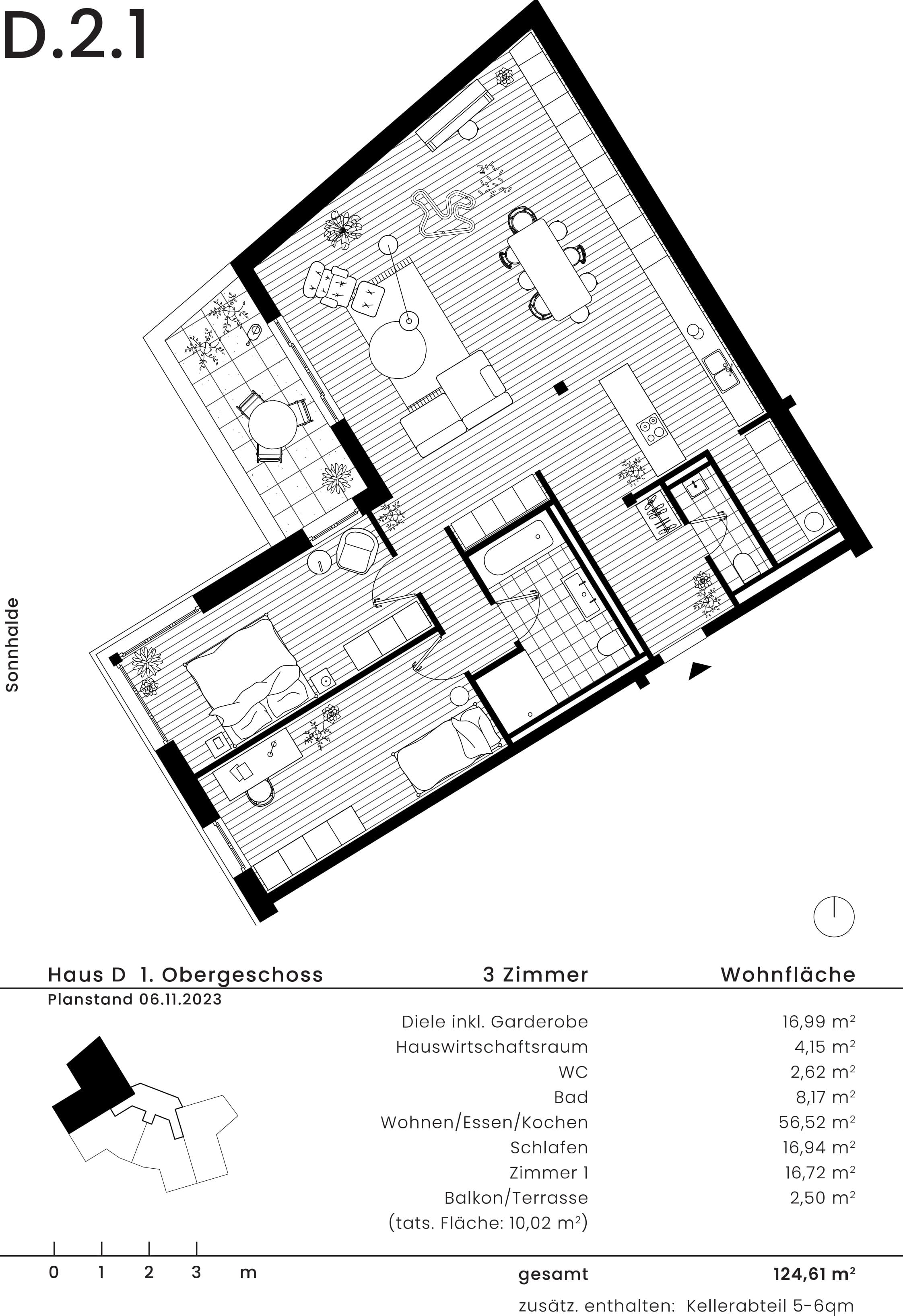
The organization of everyday life and the well-being of people play a central role in the development of the apartment floor plans. In the Sonnhalde apartments, a balance is created between individual individual and retreat rooms and a central communication location.

A smooth transition and combination of living, eating and cooking creates a focal point of everyday life in an apartment, a space in which exchange can take place in the communities and guests can be generously received. The open kitchens are complemented by a separate utility room, which provides practical functionality and additional storage space.

The individual rooms can be used multifunctionally in terms of size and lighting and can therefore be set up by the residents as required.

The lounges of the apartments face the outside and benefit from the floor-to-ceiling windows that bring daylight into the room. Due to the orientation of the apartments towards the valley and to the south, many rooms have their windows facing the sun. Modern floor plan planning and a sustainable energy concept also include controlled domestic ventilation, which ventilates the bathrooms according to high technical standards and promotes a pleasant room climate.

The planned niches for built-in cupboards in the crucial places and high-quality outfitting with underfloor heating and real wood parquet give the apartments the finishing touch.

Image new build property condominiums Wohnen an der Sonnenhalde Waldkirch

General Highlights

  • Bright and large communication room
  • Spacious open-plan kitchen/living room
  • Utility room
  • Wooden windows with double glazing
  • Real wood parquet
  • Underfloor heating
  • Porcelain stoneware tiles
  • Washing machine connection
  • Power supply with a sustainable concept
  • Electrically operated sun protection
  • External sun protection screen made of dark fabric
  • Natural views

Bathroom Highlights

  • Porcelain stoneware tiles
  • Glass shower partition
  • Mirror wall
  • Floor-level shower
  • Bathtub
  • Functional floor plan
  • Underfloor heating
  • Faucets from Grohe or equivalent
  • Ceramic Duravit or equivalent
  • Controlled domestic ventilation

Sustainability

The eight houses in the settlement on the Sonnhalde basically meet the standards of the energy efficiency class KFW 40EE. The responsible and future-oriented supply is part of the energy concept and is implemented in close cooperation with the Waldkirch public utility company. Each of the houses is supplied with thermal energy by its own heat pump. A photovoltaic system on each house supports the system with its own power supply.

The energy concept of the houses cleverly uses the location in which the north side of the houses is largely protected by the earth and the south side has large facade areas facing the sun. In winter, the temperature in the soil does not drop below 8-10°C, in summer it does not rise above 12-14°C. In winter, the solar energy input is also considerable due to the orientation of the apartments towards the sunny side.

Every house will be equipped with a fiber optic connection, so that digital supply and work in the home office is easily possible.

Image new build property condominiums Wohnen an der Sonnenhalde Waldkirch

Legal notice: the information on the construction project is an editorial contribution by neubau kompass AG. It is for information purposes only and does not constitute an offer in the legal sense. The content offered is published and checked by neubau kompass AG in accordance with § 2 TMG. Information on any commission obligation can be obtained from the provider. All information, in particular on prices, living space, furnishings and readiness for occupancy, is provided without guarantee. Errors excepted.

Provider

Sparkassen-Immobilien-Gesellschaft mbH

Damenstraße 8, 79183 Waldkirch

Sparkassen-Immobilien-Gesellschaft mbH
Contact

Contact person image

Yvonne Faiß
+49 (0)7681 474360
yvonne.faiss@s-immobilien-freiburg.de