This building project is sold out.

INTERHOMES

Dichtervillen in Karlshorst

140 new build condominiums

Project details

  • Regener Straße, 10318 Berlin / Karlshorst
  • Condominium, Apartment building, Villa
  • 140
  • Upscale
  • 15757

Features

  • Elevator
  • Balcony
  • Barrier-free
  • Rooftop terrace
  • Electrical roller shutters
  • Underfloor heating
  • Basement room
  • Controlled domestic ventilation
  • Guest toilets (limited)
  • Terrace
  • Video intercom

Location

Show on map

Project description

Fontane, Dostoevsky, Goethe – inspired by the rich literary history of the Berlin district of Karlshorst, our new build "Dichtervillen" – "poets villas" – bear the names of important Russian and German authors.
Pictures from new build property development project condominiums Dichtervillen in Karlshorst Regener Straße, 10318 Berlin / Karlshorst INTERHOMES AG

One should look at a house and see the joy with which it was built.

The Property

Designed by the renowned city architect Prof. Klaus Theo Brenner, this residential quarter and spacious park for the highest life-quality is being created in the garden city of Karlshorst, in close proximity to the German-Russian Museum.

Based on this blend of history and nature, ten modern urban villas are being created which, thanks to their elegant colour scheme, blend in perfectly with their surroundings. 14 high-quality condominiums are distributed through these villas and feature living spaces measuring between 74 m2 and 129 m2 –  here you'll find a home for every imaginable requirement.
Pictures from new build property development project condominiums Dichtervillen in Karlshorst Regener Straße, 10318 Berlin / Karlshorst INTERHOMES AG

The best anchor
is the house.

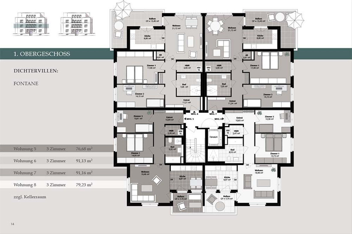
The Dichtervillen at a glance

Each of the ten villas houses 14 apartments.
  • In villas bearing the names of German poets you'll find apartments with 3 and 4 rooms, while in villas bearing the names of Russian poets there are apartments with 2 and 4 rooms.
  • The apartments' living spaces range from 74 m² to a generous 129 m².
  • All apartments have a terrace, a balcony, or a rooftop terrace.
  • A proportion of the apartments are barrier-free.
  • Each apartment has its own basement room.
  • The villas are all equipped with a lift and video intercom.
Pictures from new build property development project condominiums Dichtervillen in Karlshorst Regener Straße, 10318 Berlin / Karlshorst INTERHOMES AG

In a house where joy lives,
happiness can also grow.

The outfitting at a glance

  • Wood parquet and high-quality tiling
  • High-quality fitted kitchens from SieMatic in the villas "Brecht" and "Gorki"
  • Appealing bathroom outfitting from brand-name manufacturers such as Grohe, Villeroy & Boch and Kaldewei
  • Underfloor heating in all living rooms
  • Towel radiators and ceiling spotlighting in the bathrooms
  • Some units come with second bathroom
  • Electric shutters
  • Wood-framed windows
  • Controlled domestic ventilation for the living areas
Pictures from new build property development project condominiums Dichtervillen in Karlshorst Regener Straße, 10318 Berlin / Karlshorst INTERHOMES AG

Berlin-Karlshorst.

The location

One foot in the city and the other on a green meadow – finally, one can fulfil the dream of living close to both the city centre and the countryside.   

The Dichtervillen are located on the outskirts of the district, which has grown over the past 25 years into a very popular residential area characterised by stylish urban-style villa-park development. It's no accident that Karlshorst has been nicknamed the "Dahlem of the East" for more than 100 years.   

Karlshorst has all the advantages of an urban location: good local amenities, good transport links and an excellent educational infrastructure with daycare centres, schools and a university. For example, bus line 296 is about 300 m distant, bringing you to the local subway station, the Tierpark or the Karlshorst S-Bahn station in 10-minute intervals. These two lines go directly to Alexanderplatz. From there you can easily explore the endless cultural diversity of Berlin. However, you don't even have to leave Karlshorst for a varied cultural programme, thanks to Kulturhaus Karlshorst's diverse offering. Theatre, exhibitions, jazz clubs, studio concerts – there is something for every taste here.   

The area around the Dichtervillen is also great in terms of more active recreation. The Biesenhorster Sand nature reserve is right on the doorstep and offers excellent opportunities for long walks.   

Welcome home!
Pictures from new build property development project condominiums Dichtervillen in Karlshorst Regener Straße, 10318 Berlin / Karlshorst INTERHOMES AG

Feel and see
the difference.

Showroom in Adlershof

If you have decided on an apartment from those on offer at Dichtervillen in Karlshorst, we will now accompany you on the next steps: furnishing and outfitting your new home. Our showroom displays a wide range of sample outfitting products, from sanitary amenities to flooring materials.

Feel and see the difference between laminate, parquet and vinyl floors and find a suitable skirting board for each; choose the right pattern from over 200 wallpapers; choose between different fittings, compare different door handle sets and over 100 different tile patterns. And, finally, choose the perfect washbasin.

For all your design decisions, our technical advisors are there to help you. This way, you benefit from years of experience and expertise when it comes to construction processes and workflows. Your task is to find the best outfitting and amenities for your domestic well-being – we'll take care of the rest.

Dichtervillen in 3D

What will my house look like when it's finished? How does it fit into the neighbourhood? Answers to these questions and more are answered by our new augmented reality app, which projects a virtual 3D model of the building onto the construction site – in actual size.

For more information click here.

Due to the current situation, we currently do not offer our virtual apartment viewing using VR glasses. We ask for your understanding.

Legal notice: the information on the construction project is an editorial contribution by neubau kompass AG. It is for information purposes only and does not constitute an offer in the legal sense. The content offered is published and checked by neubau kompass AG in accordance with § 2 TMG. Information on any commission obligation can be obtained from the provider. All information, in particular on prices, living space, furnishings and readiness for occupancy, is provided without guarantee. Errors excepted.

Provider