This building project is sold out.

Avanza GmbH & Co. KG

City-Häuser Gersthofen

Neubau von 4 Stadthäusern und 3 Eigentumswohnungen

Project details

  • Kirchstraße, 86368 Gersthofen
  • Condominium, Loft apartment, Maisonette apartment, House
  • 7
  • Upscale
  • 19410

Features

  • Elevator
  • Balcony
  • Floor-level windows
  • Fitted kitchen
  • Electrical roller shutters
  • Underfloor heating
  • Basement
  • Basement room
  • Branded sanitary ware
  • Garden share (partial)
  • Terrace
  • Underground garage

Location

Show on map

Project description

Modern und zentrumsnah wohnen im Herzen von Gersthofen

Bilder Neubau Eigentumswohnungen und Häuser Kirchstraße Gersthofen

Das Objekt

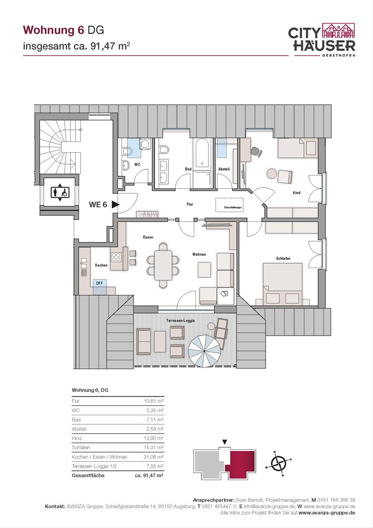
Die Wohnanlage mit 7 Wohneinheiten liegt im nördlichen Zentrum von Gersthofen – in zentraler Lage unweit vom Einkaufscenter „CityCenter Gersthofen“ und sichert damit schon heute die hohe Wertigkeit dieser Immobilie. Die Wohnungen besitzen zwischen 55 m² und 130 m² Wohnfläche.

Übersicht

  • 4 City-Häuser mit Terrasse und Garten
  • 1 Maisonette-Wohnung mit Terrasse, Garten
  • 2 Dachgeschosswohnungen mit großer Terrassen-Loggia

Highlights

Bilder Neubau Eigentumswohnungen und Häuser Kirchstraße Gersthofen

Objekt und Ausstattung

Alle Wohnungen mit Garten und Terrasse im EG oder großen Balkonen in südlicher Ausrichtung.

  • Moderne 2 – 5 Zimmer-Wohnungen in phantastischer Südausrichtung (3 WE und 4 City-Häuser)
  • EG-Wohnungen mit eigenem Garten-Anteil und großzügiger Terrasse (City-Häuser und 1. EG -Wohnung)
  • Dachgeschosswohnungen mit großer Terrassen-Loggia
  • Elektrische Rollläden in allen Wohnungen
  • Schwellenfreie Zugänge sowie Liftanlage in jede Etage
  • TG-Einzelplätze und/oder Multiparker für jede Wohnung (auf Wunsch mit Vorrüstung für Ladestation – E-Car)
  • Viele bodentiefe Fenster mit Festverglasung im Brüstungsbereich
  • Exklusive, hochwertige Ausstattung im Bereich Türen, Bodenbeläge und Badgestaltung – z.B. große Duschbereiche mit Rainshower und Ablaufrinne
  • Modernste Haustechnik mit Fußbodenheizung (jeder Raum separat steuerbar) sowie Lüftungsanlagen mit Wärmerückgewinnung und Brauchwasserthermie auf dem Dach
  • Große Bereiche für Fahrräder sowie privater Kelleranteil

Dieses Gebäude wird ein KfW 55 Effizienzhaus und hat 45% weniger Energiebedarf als ein konventioneller Neubau 2020. Hierfür können Sie 120.000 € KfW-Darlehen mit 18.000 € Tilgungszuschuss zu sehr günstigem Zins erhalten.

Gersthofen

Bilder Neubau Eigentumswohnungen und Häuser Kirchstraße Gersthofen

Kleinstadt mit vielen Vorteilen

Das Objekt befindet sich direkt im Zentrum von Gersthofen, nur etwa 1 km vom Lech und seiner wunderbaren Uferumgebung entfernt. Dieser bietet an heißen Sommertagen eine herrliche Abkühlung, genauso wie das ebenfalls nahegelegene Freibad Gerfriedswelle. Ein paar hundert Meter weiter laden Augsburgs Westliche Wälder zum Wandern oder Fahrradfahren ein.

Hier leben Sie fernab vom Citytrubel und doch so zentral, dass alle Bedürfnisse des täglichen Lebens gestillt werden. Kitas und Schulen sind ebenso wie Ärzte, Bäcker und Gastronomie fußläufig erreichbar. Bushaltestellen des öffentlichen Nahverkehrs sind ebenfalls in wenigen Minuten erreichbar. Die Gersthofer Innenstadt mit all ihren Shoppingmöglichkeiten erreichen Sie zu Fuß in nur fünf Minuten.

Auch für Pendler ist der Standort des Objektes attraktiv: Nur 600 m entfernt liegt die B2, welche Sie mit Donauwörth, der Autobahn A8 München/Stuttgart oder der B17 Richtung Augsburg/Landsberg verbindet.

Legal notice: the information on the construction project is an editorial contribution by neubau kompass AG. It is for information purposes only and does not constitute an offer in the legal sense. The content offered is published and checked by neubau kompass AG in accordance with § 2 TMG. Information on any commission obligation can be obtained from the provider. All information, in particular on prices, living space, furnishings and readiness for occupancy, is provided without guarantee. Errors excepted.

Further projects in the area