This building project is sold out.

W&N Immobilien

Quartier 18

Neubau von 27 Eigentumswohnungen

Project details

  • Gürtelstraße 18, 10247 Berlin / Friedrichshain
  • Condominium
  • On request
  • 2 rooms
  • On request
  • Upon request
  • 27
  • Standard
  • 8123

Location

Show on map

Project description


Quartier 18

Gürtelstraße 18



Im Neubau Quartier18 entstehen 27 moderne Eigentumswohnungen mit zwei bis vier Zimmern. Alle Wohnungen verfügen über Balkone und/oder ebenerdige Terrassen, Dachterrassen oder Aufdach-Terrassen.



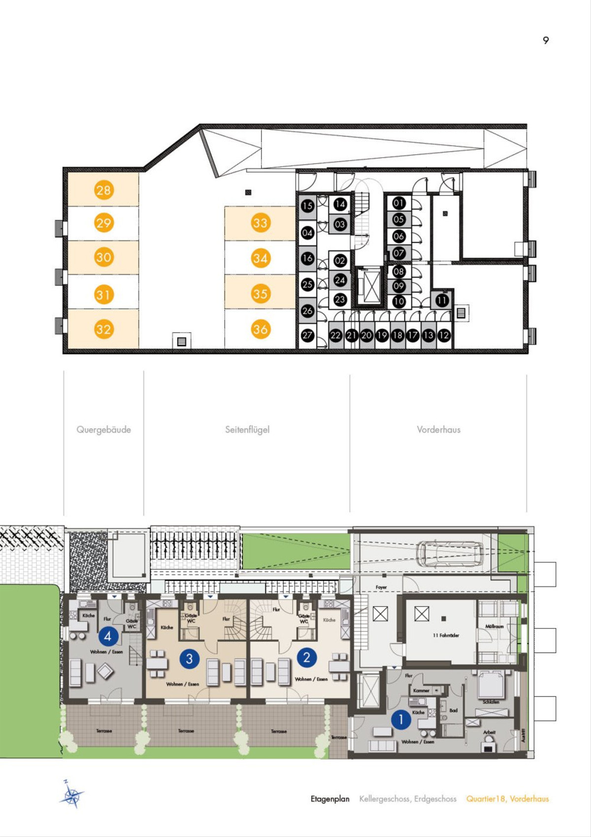
Das Projekt



Das Quartier18 besteht aus einem Vorderhaus mit sieben Geschossen und 17 Zwei-Zimmer-Wohnungen. Der Aufzug führt im Vorderhaus vom Untergeschoss bis in die Penthäuser. An das Vorderhaus schliessen der Seitenflügel mit vier Maisonette-Wohnungen und das Quergebäude mit zwei Maisonette-Wohnungen an. Seitenflügel und Quergebäude verfügen jeweils über vier Geschosse. Der Zugang zu den Wohnungen in den oberen Etagen erfolgt über den Aufzug/Treppenhaus des Vorderhauses und über einen Laubengang zu den Wohnungseingängen. Im Gartenhaus sind eine Gartenwohnung im Erdgeschoss sowie zwei Maisonette-Wohnungen mit großen Aufdach-Terrassen in den oberen Etagen. Die architektonische Gestaltung wird bestimmt durch unterschiedliche Gebäudehöhen und dem Wechselspiel zwischen großzügigen Fensteröffnungen und Balkonen. Im Untergeschoss sind neun Tiefgaragenstellplätze und Abstellräume für jede Wohnung.


Bilder zum Neubau Quartier 18

Die Ausstattung


Im Neubauobjekt Quartier18 können Sie die Ausstattung Ihrer Wohnung aus verschiedenen Angeboten individuell auswählen. Zur Auswahl stehen Sanitärprodukte (Badewannen, Waschbecken, Armaturen, WC) verschiedener namhafter Markenhersteller, unterschiedliche Parkettböden und Feinsteinzeugfliesen. Falls Sie eine Ausstattung für Ihre Wohnung wünschen, die von dieser Auswahl abweicht, ist dies selbstverständlich auch möglich. Die Wohnräume, Zimmer und Dielen erhalten ein Mehrschichtfertigparkett in Einzelstaboptik mit Oberflächenversiegelung. Bäder, Küchen, WCs und HW-Räume sind gefliest. Die Heizung- und Warmwasseranlage mit Zierkulationsleitung wird über umweltfreundliche Fernwärme versorgt. In allen Räumen erfolgt die Beheirzung über eine individuell regelbare Fußbodenheizung, im Bad gibt es zusätzlich einen Handtuchheizkörper.
Bilder zum Neubau Quartier 18

Die Lage

Berlin Friedrichshain


Berlin-Friedrichshain liegt im Zentrum der Bundeshauptstadt und bietet alle Vorteile großstädtischer Infrastruktur. Wegen der idealen Lage und der (noch) günstigen Einstiegspreise ist Friedrichshain eine Investitionschance mit viel Wertsteigerungspotential. Schon im 19. Jahrhundert war Friedrichshain Bestandteil der pulsierenden Weltstadt Berlin.

Friedrichshain hat, vergleichbar mit dem Berliner Stadtteil Prenzlauer Berg, viele schöne Altbauten. Die gefühlte Lebendigkeit von Friedrichshain drückt sich hier in Wohnen, Leben, Arbeiten und vielfältigen Freizeitaktivitäten aus. Schöne Alleen und liebevoll begrünte Plätze, viele kleine Läden, Restaurants, Biergärten, Straßen-Cafes, kleine Theater, zahlreiche kulturelle Veranstaltungen und gefragte Freizeiteinrichtungen sind hier zu finden. Besonders beliebt ist die Simon-Dach-Straße (ca. 13 Gehminuten). Diese Straße mit ihren vielen alten Bäumen gilt als beliebteste "Flaniermeile" in Friedrichshain und ist weit über Berlin hinaus bekannt.


  • U-/S-Bahn Frankfurter Allee 500m
  • S-bahn Ostkreuz 700m
  • Boxhagener Platz 900m
  • Simon-Dach-Straße 1.200m
  • Rummelsburger See 1.000m
  • Oberbaumbrücke 2.000m
  • Tierpark Friedrichsfelde 3.700m
  • Alexanderplatz 4.200m
  • Bode Museum/Museumsinsel 4.900m
  • Gendarmenmarkt 5.300m
  • Brandenburger Tor/Pariser Platz 6.200m
  • Hauptbahnhof 7.300m


Legal notice: the information on the construction project is an editorial contribution by neubau kompass AG. It is for information purposes only and does not constitute an offer in the legal sense. The content offered is published and checked by neubau kompass AG in accordance with § 2 TMG. Information on any commission obligation can be obtained from the provider. All information, in particular on prices, living space, furnishings and readiness for occupancy, is provided without guarantee. Errors excepted.

Provider

W&N Immobilien

Newtonstraße 3, 85221 Dachau

W&N Immobilien

Further projects in the area