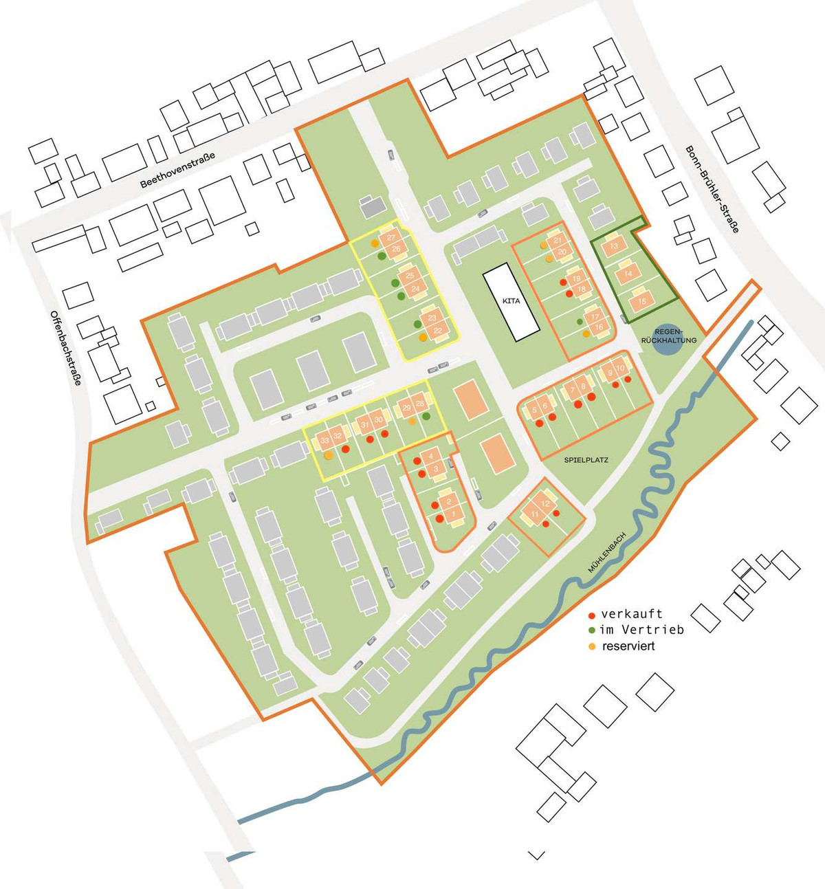
This residential example is part of the Mertener Mühle building project

*Projektvorstellung & Open-House am So., 17.05., um 12 Uhr, Gustav-Mahler-Str. 31, 53332 Bornheim*

  • Address
    Helmut-Schmidt-Straße, 53332 Bornheim-Rheinland / Merten
  • Housing type
    Semi-detached house
  • Price
    €454,900
  • Number of rooms
    5
  • Bathroom
    1
  • Bedrooms
    4
  • Living space
    135 m2
  • Property area
    310 m2
  • Year of construction
    2026
  • Ready to move in from
    vsl. Herbst 2027
  • Number of outdoor parking spaces
    2
  • ID
    285150
  • Provider property ID
    3395-23

Features

  • Balcony
  • Bathtub
  • Garden or garden access
  • Guest toilet
  • Heating: air-heat pump
  • Luxury Furnishings
  • Outdoor parking space
  • Shower
  • Storage room

Location

Show on map

Energy certificate

Energy certificate type: consumption pass
Valid until: 12.12.2034
Final energy requirement: 18.2
Energy provider: Luftwärmepumpe
Date of issue: 2024-12-13
Energy class: A+
18.2 kWh/(m²*a)
Energy efficiency class A+
  • A+
  • A
  • B
  • C
  • D
  • E
  • F
  • G
  • H
  • 0
  • 25
  • 50
  • 75
  • 100
  • 125
  • 150
  • 175
  • 200
  • 225
  • > 250

The financing calculator for your home loan

You can use our financing calculator to quickly and easily calculate a loan for your property.

Financing example

Equity: 90.980 €
Debit interest commitment: 10 years
Repayment rate: 1 %
Monthly installment

€1.402

This residential unit is part of the
Mertener Mühle building project

Contact provider
*Required field

We treat your data confidentially. By submitting, you agree to the processing of your request in accordance with our privacy policy and general terms & conditions for customers.

Provider