This building project is sold out.
Project details
-
AddressSchwilkenhofstraße 49, 70439 Stuttgart / Stammheim
-
Housing typeCondominium
-
PriceOn request
-
Rooms3 - 5 rooms
-
Living spaceOn request
-
Ready to occupyUpon request
-
Units4
-
CategoryStandard
-
Project ID7345
Location
Project description
Mehrfamilienhaus Schwilkenhofstraße
Auf dem Grundstück Schwilkenhofstraße 49 in Stuttgart-Stammheim entsteht ein Mehrfamilienhaus mit nur 4 Eigentumswohnungen. Das Objekt ist projektiert. Der Baubeginn erfolgt im Frühjahr 2014.
Die Lage
Randlage in Stuttgart-Stammheim. Sehr gute Verkehrsanbindung nach Ludwigsburg oder ins Zentrum von Stuttgart. Nahverkehr fußläufig erreichbar.
Die Wohnungen
In dem Objekt sind nur 4 Wohnungen geplant:
- 3-Zimmerwhg mit ca. 80 qm Wohnfläche im Terrassengeschoss
- 4-Zimmerwhg im Erdgeschoss mit Balkon, ca. 120 qm Wohnfläche.
- 4-Zimmerwhg im Obergeschoss mit Balkon, wohnen auf einer Etage.
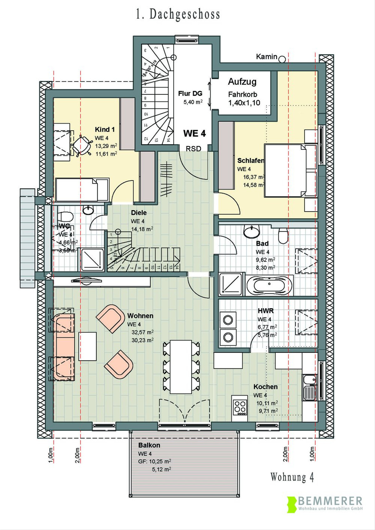
- 5-Zimmerwhg im Dachgeschoss als Maisonettewohnung mit Balkon
Highlights
- KfW-Effizienzhaus 70 (Zinsvorteil)
- Wohnungseingangstüre als Schallschutztüre
- Rauchmelder in den Wohnungen
- Gas-Brennwertgerät mit Stirlingmotor (Mikro-KWK-Anlage)
- Granit-Treppenhaus mit Edelstahlhandlauf
- Fußbodenheizung in der gesamten Wohnung
- Tür-Sprechanlage mit Videoüberwachung
- Bad mit Badewanne und großer Duschwanne
- Handtuchheizkörper im Bad
- Parkettbelag in den Wohnräumen
- großzügige nach Süden ausgerichtete Balkone/Terrassen
- kontrollierte Wohnraumlüftung mit Wärmerückgewinnung
- 3-fach Klimaschutzverglasung an Fenstern
- Sanitärkeramik von Villeroy & Boch
Baubeschreibung
- Villeroy & Boch VitaGhia Duo-Badewanne, einschl. Füße 180 cm x 80 cm mit Mittelablauf, Ab- und Überlauf für Badewanne, Wasserzulauffunktion mit Drehgriff und Farbset
- VitaArt Unterputz Wanneneinhandbatterie einschl. Fertigset chrom
- Stabhandbrause mit Schlauch 125 cm und Wandhalter
Angaben gemäß EnEV:
Energieausweistyp: Bedarfsausweis
Primärenergiebedarf: 50,7kWh/(m²*a)
Endenergiebedarf: 19,5kWh/(m²*a)
Wesentlicher Energieträger: Strom-Mix
Effizienzklasse: A+
Baujahr: 2014
Legal notice: the information on the construction project is an editorial contribution by neubau kompass AG. It is for information purposes only and does not constitute an offer in the legal sense. The content offered is published and checked by neubau kompass AG in accordance with § 2 TMG. Information on any commission obligation can be obtained from the provider. All information, in particular on prices, living space, furnishings and readiness for occupancy, is provided without guarantee. Errors excepted.




