Pro Casa Immobilien GmbH

Hummelshagen 42-44

2 plots of land for sale

Project details

  • Hummelshagen 42-44, 45219 Essen / Kettwig
  • Semi-detached house, Plot of land
  • €1,275,000
  • 1,597 m2
  • Upon request
  • 2
  • 28018

Location

Show on map

Further info

Commission
The buyer’s brokerage commission amounts to 3.57% incl. VAT of the purchase price and is due and payable upon conclusion of the notarised purchase contract.

Contact provider
*Required field

We treat your data confidentially. By submitting, you agree to the processing of your request in accordance with our privacy policy and general terms & conditions for customers.

Project description

Image new build property Hummelshagen, Essen Kettwig

Essen-Kettwig

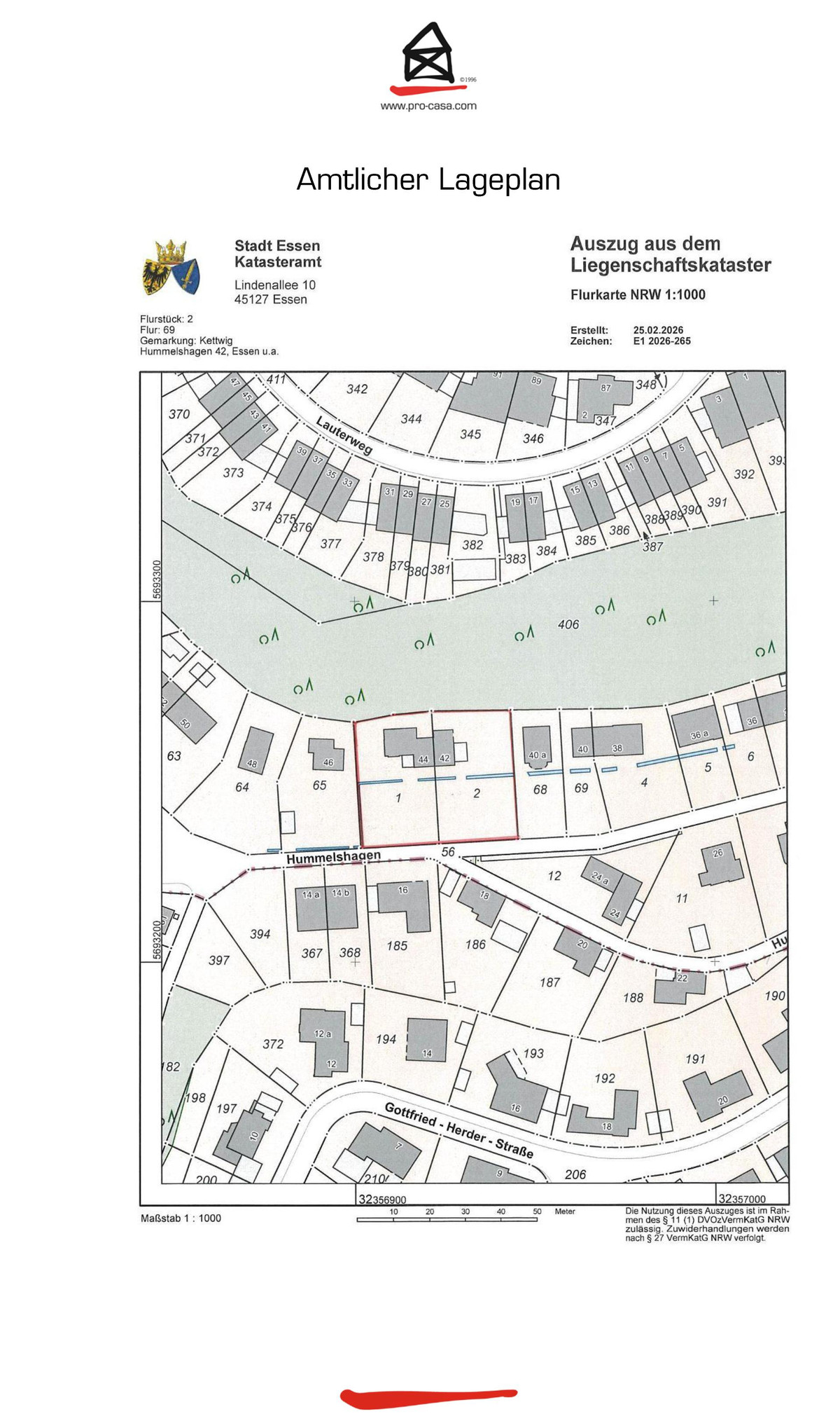
Plot for 4 semi-detached houses, garages and carports with approved planning permission

An attractive development project with approved planning permission is available for the two adjacent plots with a total area of approx. 1,597 sqm. One of the plots currently contains an existing building, which can be demolished as part of the planned redevelopment to make way for a modern and future-oriented residential concept.

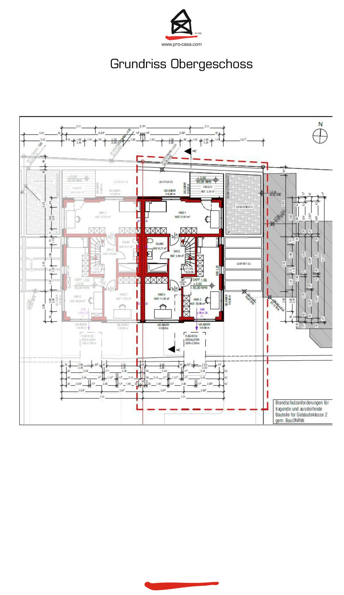
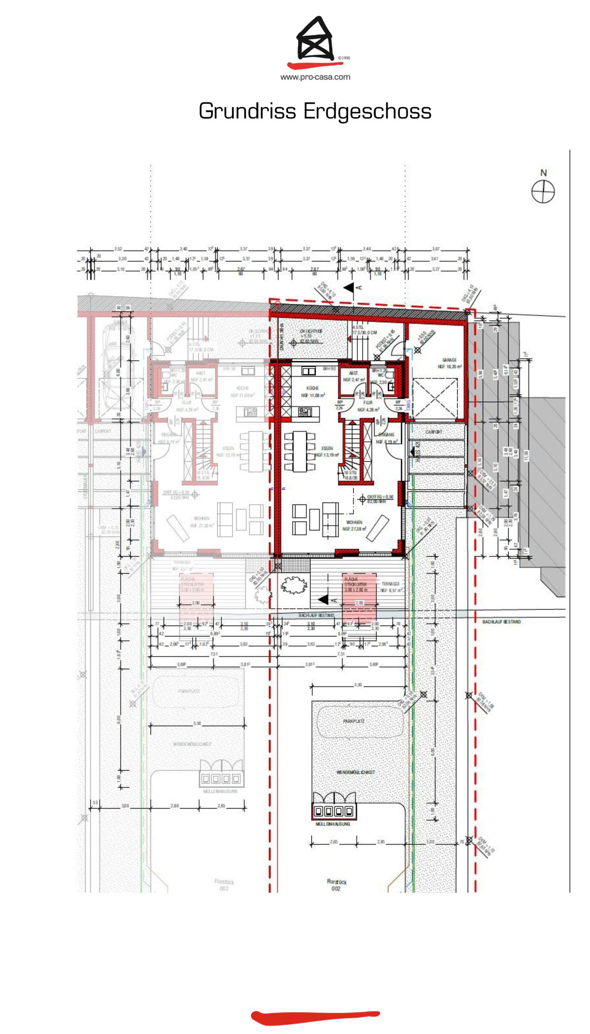
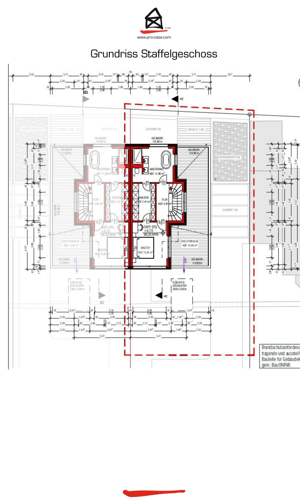
The project provides for the construction of four high-quality semi-detached houses with approx. 200 sqm of living space each, designed in a contemporary architectural style. Each unit features a modern and clear design language as well as well-thought-out, functional layouts that can be flexibly adapted to individual needs. Generous living and dining areas, bright interiors with large window surfaces and optimally designed bedrooms and ancillary rooms create an attractive living environment for families, couples or investors.

The concept is complemented by a total of four garages and four additional carports, ensuring sufficient parking for future residents. The arrangement of the buildings on the plots allows for optimal use of space while maintaining privacy, natural lighting and appealing outdoor design.

The project planning, including approved building permission, is fully in place, providing an excellent basis for timely realisation. Overall, this is a well-conceived and modern residential development with strong market appeal and sustainable development potential.

Key data at a glance

  • Plot sizes 811 sqm / 786 sqm
  • Total plot approx. 1,597 sqm
  • Purchase price €1,275,000
Image new build property Hummelshagen, Essen Kettwig

Location description

The plot is located in a quiet and green residential area of Essen-Kettwig, characterised by detached houses and smaller apartment buildings. The neighbourhood stands out for its well-maintained streets, low traffic levels and particularly family-friendly atmosphere. All everyday amenities – supermarkets, pharmacies, schools and kindergartens – are easily accessible on foot or by bicycle. For leisure activities, the surrounding area offers numerous green spaces, walking and cycling paths along the Ruhr as well as sports and play facilities for children. The historic centre of Kettwig, with its cafés, restaurants and cultural offerings, is only a few minutes away.


Commission

The buyer’s brokerage commission amounts to 3.57% incl. VAT of the purchase price and is due and payable upon conclusion of the notarised purchase contract.

Note

All offers are subject to change and provided to the best of our knowledge. This exposé may only be shared with our consent. The above information has been prepared with the greatest care. However, as all details are based solely on information provided by the seller, we cannot assume liability. Prior sale and errors excepted. Place of performance and jurisdiction is Essen.

Legal notice: the information on the construction project is an editorial contribution by neubau kompass AG. It is for information purposes only and does not constitute an offer in the legal sense. The content offered is published and checked by neubau kompass AG in accordance with § 2 TMG. Information on any commission obligation can be obtained from the provider. All information, in particular on prices, living space, furnishings and readiness for occupancy, is provided without guarantee. Errors excepted.

Provider

Pro Casa Immobilien GmbH

Brückstr. 15-17, 45239 Essen

Pro Casa Immobilien GmbH