This building project is sold out.

Reinholz & Hermsdorf Immobilien

Am Dorfanger

Neubau von 12 Reihenhäusern

Project details

  • Am Dorfanger, 22851 Norderstedt / Glashütte
  • Terraced house, House
  • 12
  • Upscale
  • 11717

Location

Show on map

Further info

Kaufpreise

  • Ab 329.900 EUR

Project description

Bilder Neubau Reihenhäuser Am Dorfanger Norderstedt

Leben mit Charme

Bilder Neubau Reihenhäuser Am Dorfanger Norderstedt

Auf einem ruhig gelegenen Grundstück in charmanter Umgebung zu einem Pferdehof entstehen ins gesamt zwölf Reihenhäuser in zwei Baukörpern mit 15 Stellplätzen.

In dieser grünen und familienfreundlichen Lage war es dem Architektenteam bei der Planung sofort klar: Wohnraum für Familien mit viel Platz zum Leben - innen und außen. Dabei wurden auf beiden Ebenen spannende Grundrisse und tolle Räume geschaffen.

Das leichte Spiel der Fassaden mit Putzbereichen, hanseatischen Klinkerriemchen und Holzelementen schafft genau das richtige Maß an Extravaganz. Und innen sind moderne Technik und Ausstattung integriert.

Die PKW-Stellplätze sind zwischen den beiden Gebäudekörpern untergebracht, so dass die Bewohner der Häuser ungestört Ihre Gärten genießen können. Jedem Reihenhaus ist ein Gartenanteil zur Sondernutzung übertragen.

Grundrisse

Bilder Neubau Reihenhäuser Am Dorfanger Norderstedt

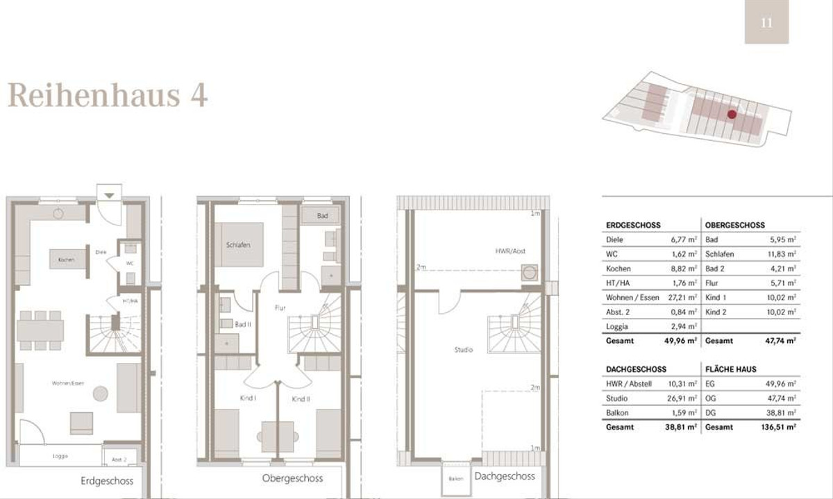
Im Erdgeschoss sind großzügige Wohn- und Essbereiche mit einer offenen Küche verbunden.

Der besonders schön gestaltete Grundriss bietet im Obergeschoss drei Schlafräume mit zwei Badezimmern, wobei das Elternschlafzimmer mit Bad en Suite ausgeführt ist. Weiteren Platz bietet die Atelierfläche im ausgebauten Spitzboden.

Im Dachgeschoss befindet sich auch der Hauswirtschaftsraum mit Waschküche, der so einen optimalen Anschluss an das "wäschereiche" erste Obergeschoss findet.

Die Grundrisse sind ideal für Familien.

Die Häuser werden schlüsselfertig ohne Einbauküchen geliefert. Der Wegfall einzelner Bauleistungen ist auf Wunsch gegen Gutschrift möglich.

Umgebung

Bilder Neubau Reihenhäuser Am Dorfanger Norderstedt

Dorfanger Glashütte. Mit der Aufstellung des Bebauungsplanes sollte ein an die Gemeinschaftsideologie orientierter Siedlungsmittelpunkt entstehen, der sich mit der Struktur deutlich von einem Neubau gebiet abgrenzt und die Formen und das Umfeld des ländlichen Lebens am Stadtrand würdigt.

Die Umgebung ist im wesentlichen geprägt durch die Reste ehemaliger - aber auch noch intakter - landwirtschaftlicher Hofstellen sowie kleinerer Handwerksbetriebe und einer lockeren, offenen Bebauung mit Einfamilien-, Doppelund Reihenhäusern.

Zwischen Erholung im Grünen mit zahlreichen Parks (Bürgerpark, Tarpenbekpark, Moorbekpark) und der Nähe zum Zentrum Norderstedts und Hamburgs liegt das begehrte Glashütte.

Breit diversifizierte Einkaufsmöglichkeiten (Herold-Center, Moorbek-Passage), verschiedene soziale Einrichtungen, Ärzte, Apotheken, Kindergärten und Schulen sind in Norderstedt für jeden Anspruch ausreichend vorhanden.

Norderstedt ist Bestandteil des Hamburger Verkehrsverbundes und verfügt somit über eine optimale Anbindung an den öffentlichen Personennahverkehr.

Nur wenige Minuten Fußweg entfernt liegt die Bushaltestelle Glashütte, Hofweg mit den Buslinien 378, 478, 7550 und 7551 mit Anbindung an die U-Bahnlinie (Linie U1) mit dem Anschluß Hamburg Ochsenzoll. Von dort aus gelangen Sie innerhalb von einer halben Stunde bequem in die Hamburger Innenstadt.

Auch die Autobahn A7 mit der Anschlussstelle Schnelsen- Nord ist - wie der Hamburger Flughafen - sehr gut in wenigen Minuten Fahrzeit zu erreichen.

Legal notice: the information on the construction project is an editorial contribution by neubau kompass AG. It is for information purposes only and does not constitute an offer in the legal sense. The content offered is published and checked by neubau kompass AG in accordance with § 2 TMG. Information on any commission obligation can be obtained from the provider. All information, in particular on prices, living space, furnishings and readiness for occupancy, is provided without guarantee. Errors excepted.

Provider

Reinholz & Hermsdorf Immobilien

Stahltwiete 21, 22761 Hamburg

Reinholz & Hermsdorf Immobilien