This building project is sold out.

S-Immobilien der Kreissparkasse Groß-Gerau GmbH

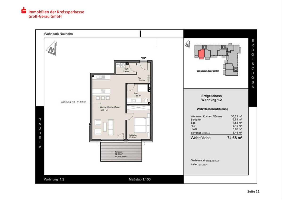
Wohnpark Nauheim

Neubau von 44 Eigentumswohnungen

Project details

  • Schillerstraße 4-6, 64569 Nauheim
  • Condominium
  • 44
  • Upscale
  • 14850

Location

Show on map

Project description

Wohnpark Nauheim

PROVISIONSFREI - Nur für kurze Zeit !!

Bilder Neubau Wohnpark Nauheim

Objektbeschreibung

Hier entstehen in zentraler Lage von Nauheim großzügige, schlüsselfertige, 2-5 Zimmer Wohnungen von 68 m² bis 246 m².

PROVISIONSFREI - Nur für kurze Zeit !!

Hochwertige Ausstattung und größtmögliche Mitsprache bei der Auswahl. Die Baubeschreibung bildet nur einen Rahmen, der Ihre Wünsche mit Leben füllt. Moderne und durchdachte Architektur bescheren Ihnen hier ein angenehmes Wohngefühl sowie hervorragende langfristige Vermietbarkeit als Kapitalanlage. Sicherlich eine herausragende Erscheinung ist das neue und sehr moderne Wohnkonzept.

Die Fertigstellung des Bauprojektes ist für ca. Ende 2018 geplant.
KFZ Außenstellplätze: Kaufpreis 8.000,-€
KFZ Tiefgaragenstellplätze: Kaufpreis: 15.000.- € , mit Überbreite 17.500,- €
TÜV zertifiziert
Förderfähig nach KfW 55


Bilder Neubau Wohnpark Nauheim

Ausstattung

  • größtenteils bodentiefe Fenster für maximalen Lichtkomfort
  • Dreifach-Verglasung
  • Elektrische Rollläden bei allen Fenstern und Balkontüren
  • Fußbodenheizung
  • Bodenbelag: Fliesen oder Echtholzparkett
  • Maler- und Tapetenarbeiten inklusive
  • Luftwärmepumpe als Energieträger modernste Energieeffizienz, maximaler Komfort bei geringen Betriebskosten
  • Barrierefrei - ideal für Senioren
  • Personenaufzug: von der Tiefgarage bis zu den Penthouse-Wohnungen
  • Schlüsselfertige Ausführung
  • Penthousewohnungen mit großen Dachterrassen
Bilder Neubau Wohnpark Nauheim
Bilder Neubau Wohnpark Nauheim

Lage

Nauheim zeichnet sich durch eine hervorragende Verkehrsanbindung in alle Richtungen der Nachbarregionen des Rhein- Main-Gebietes aus. Neben einem günstig getakteten eigenen Bahnanschluss (RB75: Aschaffenburg - Darmstadt - Wiesbaden, im Plan Nr. 3) verfügt Nauheim über ein erweitertes Busangebot. Über Busverbindungen erreichen Sie weiterführende Schulen in der Nachbarstadt Rüsselsheim und der Kreisstadt Groß-Gerau sowie S-Bahn-Haltepunkte in Bischofsheim, Rüsselsheim und Groß-Gerau/Dornberg.

Über die L 3482 gelangen Sie in 6,5 km zur Anschlussstelle Bischofsheim und über die L 3040 in ca. 3,5 km Entfernung zur Anschlussstelle Rüsselsheim-Königstädten/Nauheim zur A 60 in Richtung Mainz und Wiesbaden. Über letztere und weiter über die A67 und die A3 erreichen Sie auch schnell Frankfurt sowie den Frankfurter Flughafen (ca. 18 km).

Die Gemeinde Nauheim verfügt über fünf Betreuungseinrichtungen mit insgesamt über 430 Betreuungsplätze für Kinder im Alter von 12 Monaten bis zum Ende der Grundschulzeit. Der TV Sportkindergarten bietet zusätzlich weitere 40 Betreuungsplätze (30 für Kita- und 10 für U3-Kinder) an. Seit März 2014 stehen in der Krippe "Drei Käsehoch" der 360 Grad Familie GmbH weitere 12 U3-Plätze für Kinder ab 12 Monaten zur Verfügung.

Weiterhin finden Sie umliegend eine gute Infrastruktur mit 14 Kindertagesstätten, vier Grundschulen, einer integrierten Gesamtschule mit gymnasialer Oberstufe, zwei Jugendzentren, einer Volkshochschule und einer Musikschule vor.

Hinweis

Alle Angaben haben wir vom Auftraggeber erhalten. Für deren Richtigkeit können wir keine Gewähr übernehmen. Einen Zwischenverkauf behält sich der Auftraggeber/Verkäufer ausdrücklich vor.

Legal notice: the information on the construction project is an editorial contribution by neubau kompass AG. It is for information purposes only and does not constitute an offer in the legal sense. The content offered is published and checked by neubau kompass AG in accordance with § 2 TMG. Information on any commission obligation can be obtained from the provider. All information, in particular on prices, living space, furnishings and readiness for occupancy, is provided without guarantee. Errors excepted.

Provider

S-Immobilien der Kreissparkasse Groß-Gerau GmbH

Darmstädter Straße 22, 64521 Groß-Gerau

S-Immobilien der Kreissparkasse Groß-Gerau GmbH

Further projects in the area