This residential example is part of the Sommerstraße 23 | Roggensteinerstraße 152 building project

MGF-Group: 4-Zimmer-Erdgeschosswohnung mit Terrasse und eigenem Garten - WHG 08.

  • Address
    Sommerstraße 23 | Roggensteinerstraße 152, 82140 Olching
  • Housing type
    Ground-floor apartment
  • Price
    €685,000
  • Floor
    1 upper floor (ground floor)
  • Number of rooms
    4
  • Bathroom
    1
  • Bedrooms
    2
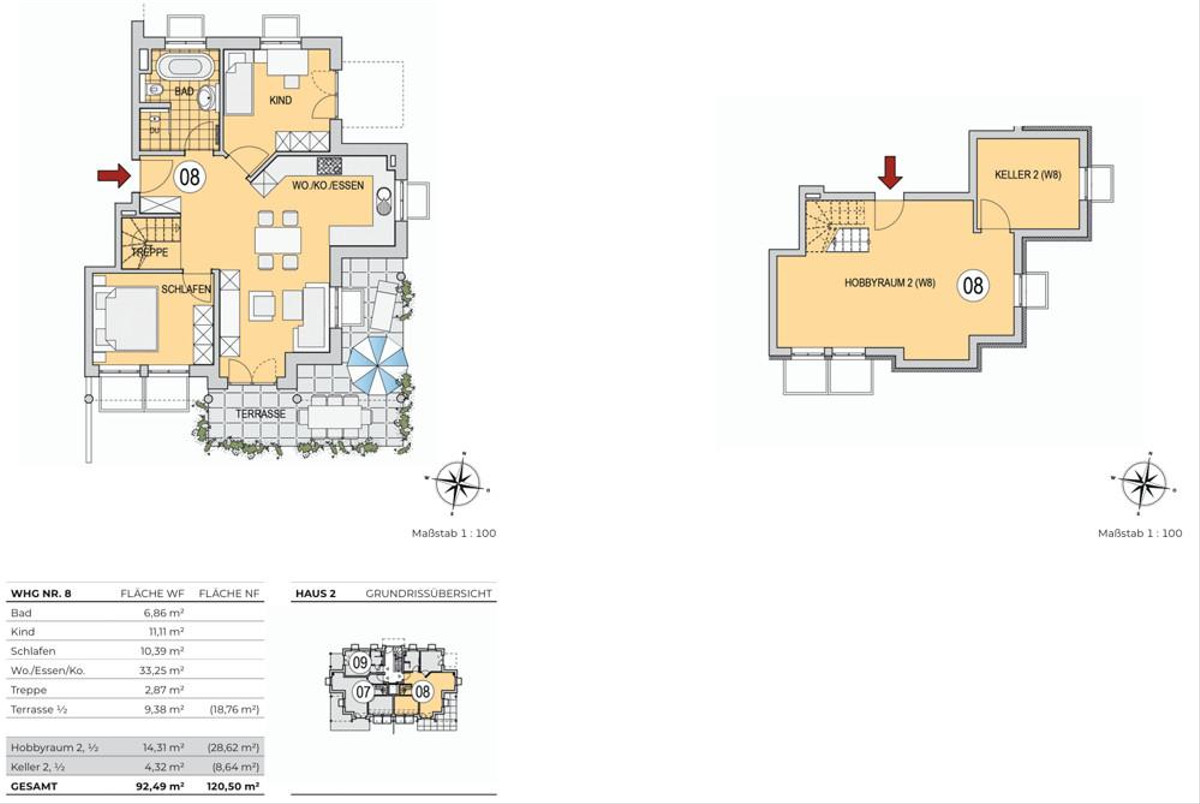
  • Living space
    92.49 m2
  • Usable space
    120.5 m2
  • Year of construction
    2025
  • Duplex parking space
    €29,500
  • Number of duplex parking spaces
    1
  • ID
    284249
  • Provider property ID
    MG659

Features

  • Heating: air-heat pump
  • Passenger lift
  • Underfloor heating

Location

Show on map

The financing calculator for your home loan

You can use our financing calculator to quickly and easily calculate a loan for your property.

Financing example

Equity: 137.000 €
Debit interest commitment: 10 years
Repayment rate: 1 %
Monthly installment

€2.136

This residential unit is part of the
Sommerstraße 23 | Roggensteinerstraße 152 building project

Request prospectus/price list
*Required field

We treat your data confidentially. By submitting, you agree to the processing of your request in accordance with our privacy policy and general terms & conditions for customers.

Provider

MGF-Group

Südliche Münchner Str. 55, 82031 Grünwald

MGF-Group