This residential example is part of the Schützenstraße 21 building project

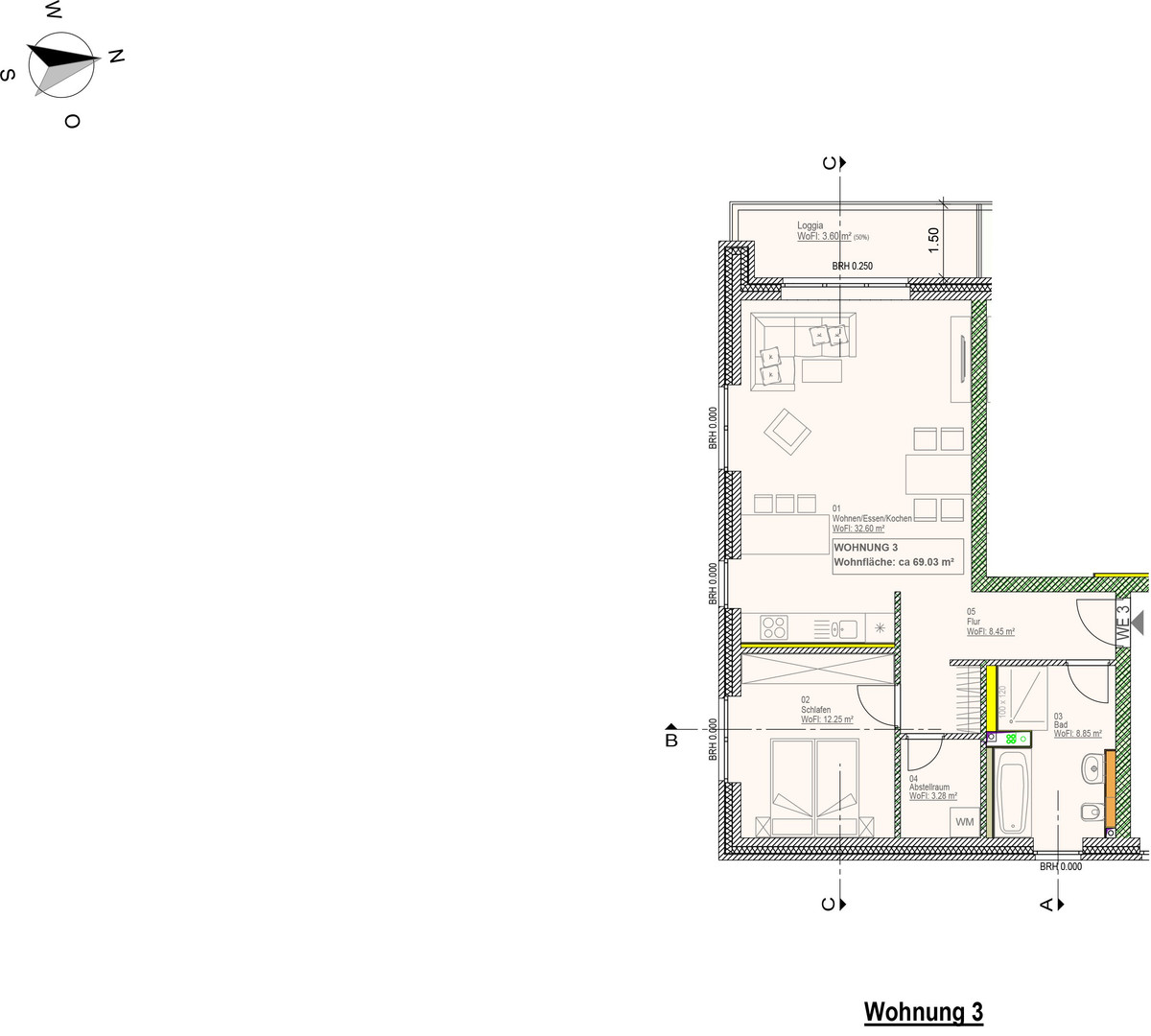
WE 3

  • Commission-free
  • Address
    Schützenstraße 21, 24568 Kaltenkirchen
  • Housing type
    Upper-floor apartment
  • Price
    €399,900
  • Floor
    1 upper floor
  • Number of rooms
    2
  • Living space
    69.03 m2
  • Outdoor parking space
    €14,400
  • ID
    219841

Location

Show on map

The financing calculator for your home loan

You can use our financing calculator to quickly and easily calculate a loan for your property.

Financing example

Equity: 79.980 €
Debit interest commitment: 10 years
Repayment rate: 1 %
Monthly installment

€1.330

This residential unit is part of the
Schützenstraße 21 building project

Request prospectus/price list
*Required field

We treat your data confidentially. By submitting, you agree to the processing of your request in accordance with our privacy policy and general terms & conditions for customers.

Provider

Stoll Haus

Tuckerredder 12, 24850 Schuby

Stoll Haus