This residential example is part of the Paulshöfe building project

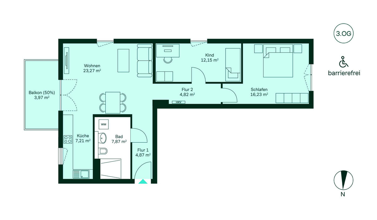
3-Zi. im 3. Obergeschoss, barrierefrei, mit Balkon und bodengleicher Dusche

  • Efficiency House 40
  • Efficiency House 55 EE
  • Im Rohbau
  • Address
    Paulsmühlenstraße, Ecke Telleringstraße, 40597 Dusseldorf / Benrath
  • Housing type
    Apartment
  • Price
    €499,900
  • Floor
    3 upper floor
  • Number of rooms
    3
  • Bathroom
    1
  • Bedrooms
    2
  • Living space
    80.39 m2
  • Year of construction
    2026
  • Ready to move in from
    Winter 2026/2027
  • ID
    293658
  • Provider property ID
    132862627#Z1AxyZ

Features

  • Balcony
  • Barrier-free
  • New build
  • Passenger lift
  • Underfloor heating

Location

Show on map

The financing calculator for your home loan

You can use our financing calculator to quickly and easily calculate a loan for your property.

Financing example

Equity: 99.980 €
Debit interest commitment: 10 years
Repayment rate: 1 %
Monthly installment

€1.539

This residential unit is part of the
Paulshöfe building project

Request prospectus/price list
*Required field

We treat your data confidentially. By submitting, you agree to the processing of your request in accordance with our privacy policy and general terms & conditions for customers.

Provider

Bonava Deutschland

Am Nordstern 1, 15517 Fürstenwalde

Bonava Deutschland