This residential example is part of the Leyendeckerstraße 17 - 27 building project

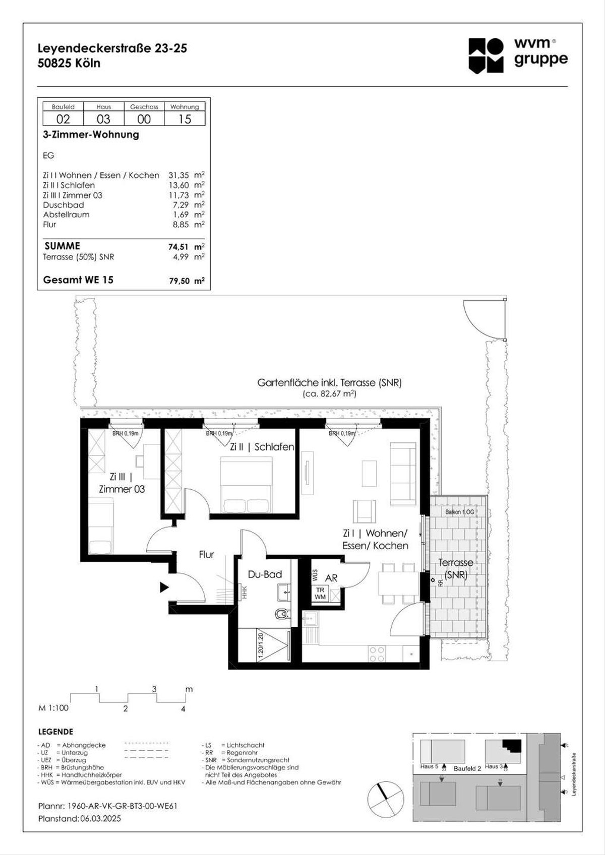
Familienfreundliche Wohnung mit ca. 80 m² und Garten

  • Address
    Leyendeckerstraße 17 - 27, 50825 Cologne / Ehrenfeld
  • Housing type
    Ground-floor apartment
  • Price
    €599,900
  • Number of rooms
    3
  • Bathroom
    1
  • Bedrooms
    2
  • Living space
    79.5 m2
  • Underground parking space
    €34,900
  • ID
    293811
  • Provider property ID
    Leyendeckerstr. 25 - 02.03.00.15

Features

  • Balcony
  • Barrier-free
  • Basement
  • Heating: air-heat pump
  • Luxury Furnishings
  • Passenger lift
  • Storage room
  • Underfloor heating
  • Underground parking space

Location

Show on map

Energy certificate

Energy certificate type: consumption pass
Valid until: 12.12.2034
Final energy requirement: 68.7
Energy provider: Luftwärmepumpe
Date of issue: 2024-12-13
Energy class: B
68.7 kWh/(m²*a)
Energy efficiency class B
  • A+
  • A
  • B
  • C
  • D
  • E
  • F
  • G
  • H
  • 0
  • 25
  • 50
  • 75
  • 100
  • 125
  • 150
  • 175
  • 200
  • 225
  • > 250

The financing calculator for your home loan

You can use our financing calculator to quickly and easily calculate a loan for your property.

Financing example

Equity: 119.980 €
Debit interest commitment: 10 years
Repayment rate: 1 %
Monthly installment

€1.847

This residential unit is part of the
Leyendeckerstraße 17 - 27 building project

Contact provider
*Required field

We treat your data confidentially. By submitting, you agree to the processing of your request in accordance with our privacy policy and general terms & conditions for customers.

Provider

WvM Vertriebsgesellschaft mbH

Hardefuststraße 7, 50677 Cologne

WvM Vertriebsgesellschaft mbH