This residential example is part of the Inselquartier Eiswerder building project

Kurzfristig bezugsfertig: Traumhafte 5-Zimmer-Neubau-Wohnung mit großer Loggia - direkt am Wasser

  • Address
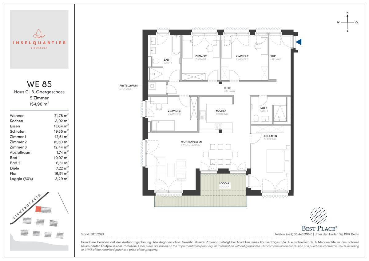
    Eiswerderstraße, 13585 Berlin / Hakenfelde
  • Housing type
    Upper-floor apartment
  • Price
    €1,010,000 (plus commissions)
  • Commission for buyers
    3,57%
  • Floor
    3 upper floor
  • Number of rooms
    5
  • Bathrooms
    2
  • Bedrooms
    4
  • Living space
    154.9 m2
  • Year of construction
    2025
  • ID
    288195
  • Provider property ID
    EIS-WE85

Features

  • Basement
  • Heating: gas
  • Passenger lift
  • Underfloor heating
  • Underground parking space

Location

Show on map

Energy certificate

Energy certificate type: consumption pass
Valid until: 1935-12-01
Final energy requirement: 74.5
Energy provider: GAS
Energy class: B
74.5 kWh/(m²*a)
Energy efficiency class B
  • A+
  • A
  • B
  • C
  • D
  • E
  • F
  • G
  • H
  • 0
  • 25
  • 50
  • 75
  • 100
  • 125
  • 150
  • 175
  • 200
  • 225
  • > 250

The financing calculator for your home loan

You can use our financing calculator to quickly and easily calculate a loan for your property.

Financing example

Equity: 202.000 €
Debit interest commitment: 10 years
Repayment rate: 1 %
Monthly installment

€3.380

This residential unit is part of the
Inselquartier Eiswerder building project

Contact provider
*Required field

We treat your data confidentially. By submitting, you agree to the processing of your request in accordance with our privacy policy and general terms & conditions for customers.

Provider

Best Place Living

Unter den Linden 39, 10117 Berlin

Best Place Living