This residential example is part of the Bergische Gärten building project

Doppelhaus mit Terrasse und Garage

  • Efficiency House 55
  • Commission-free
  • Address
    Schlehenweg/Ulmenweg, 42489 Wülfrath
  • Housing type
    Semi-detached house
  • Price
    on request
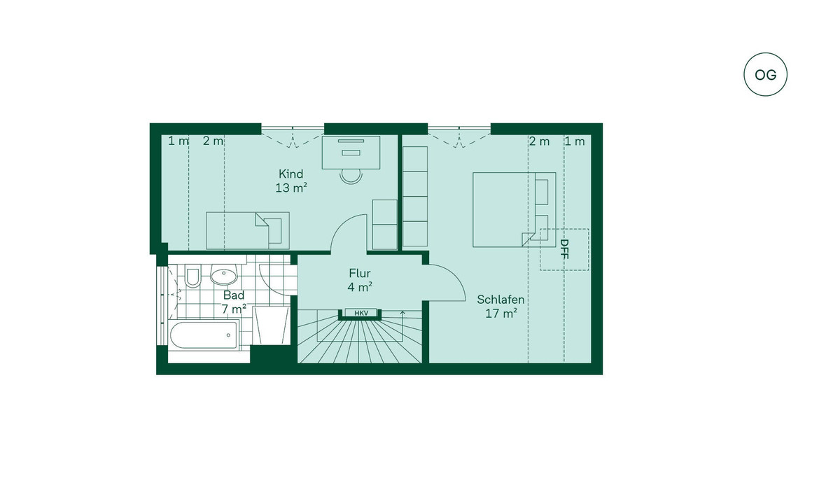
  • Number of rooms
    5
  • Bedrooms
    4
  • Living space
    134.77 m2
  • Property area
    286 m2
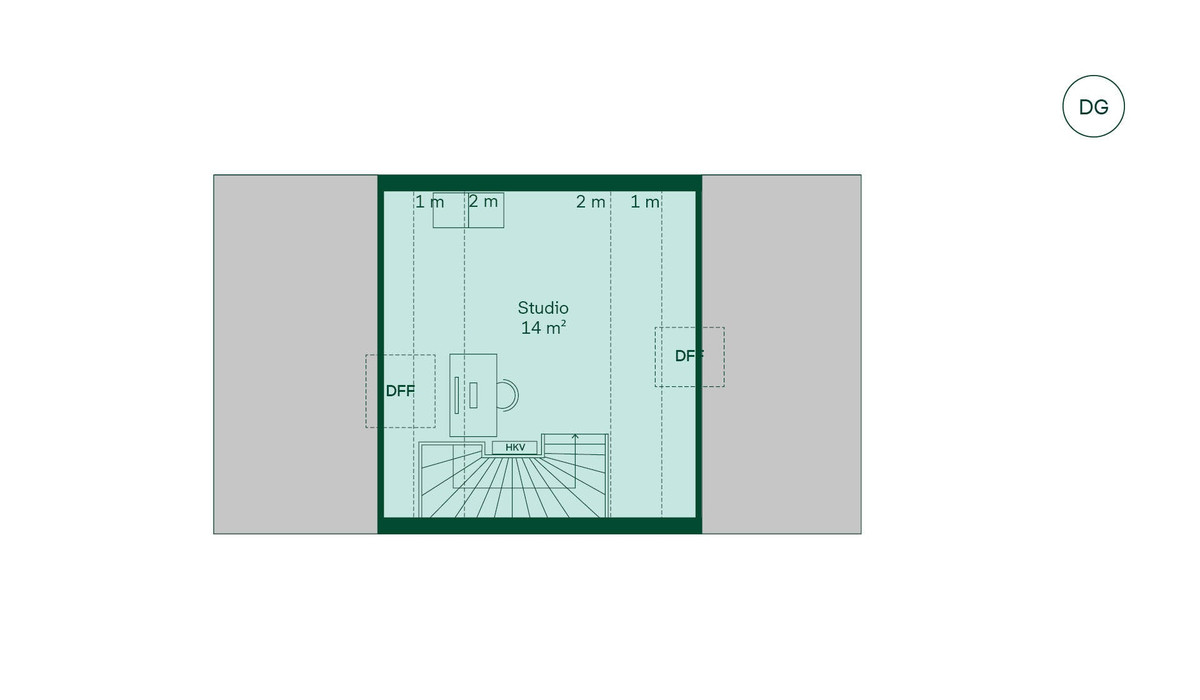
  • Usable space
    41.28 m2
  • Year of construction
    2026
  • Ready to move in from
    2026
  • Number of outdoor parking spaces
    1
  • ID
    279815
  • Provider property ID
    132862104#Z1AxyZ

Features

  • Basement
  • Bathtub
  • Garage parking space
  • Guest toilet
  • Heating: air-heat pump
  • New build
  • Shower
  • Underfloor heating

Location

Show on map

Energy certificate

Energy provider: Wärmepumpe

This residential unit is part of the
Bergische Gärten building project

Request prospectus/price list
*Required field

We treat your data confidentially. By submitting, you agree to the processing of your request in accordance with our privacy policy and general terms & conditions for customers.