SOLD

This building project is <b>sold out</b>.

This residential example is part of the ALEXISQUARTIER – Das Duett building project

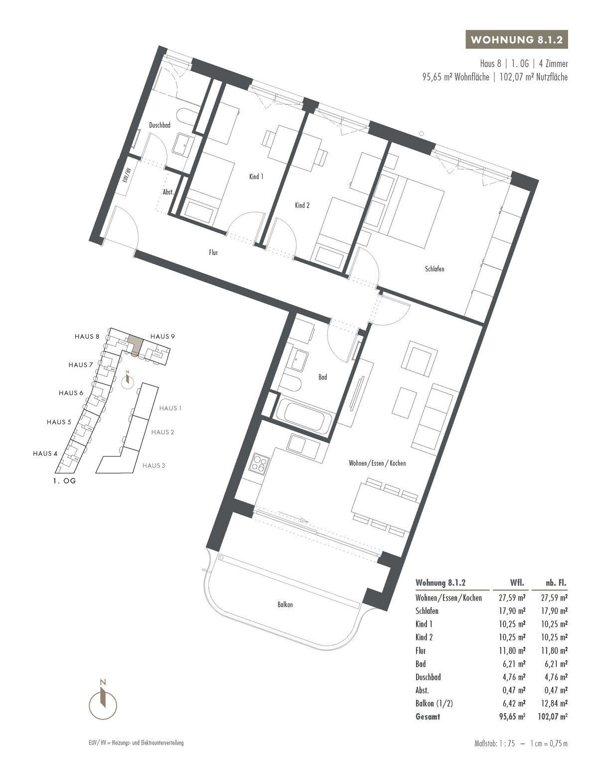
Wohnung 8.1.2

  • Ready to occupy
  • Efficiency House 55
  • GEG 2020
  • Address
    Kyivstraße, 81735 Munich / Perlach
  • Housing type
    Upper-floor apartment
  • Price
    €784,000
  • Floor
    1 upper floor
  • Number of rooms
    4
  • Living space
    95.65 m2
  • ID
    238462

Location

Show on map

The financing calculator for your home loan

You can use our financing calculator to quickly and easily calculate a loan for your property.

Financing example

Equity: 156.800 €
Debit interest commitment: 10 years
Repayment rate: 1 %
Monthly installment

€2.445

This residential unit is part of the
ALEXISQUARTIER – Das Duett building project