This residential example is part of the YORCK14 building project

WE4-1 | Exklusives Penthouse mit Dachterrasse in KfW-40-QNG-PLUS Bauweise im Regensburger Westen.

  • Efficiency House 40 QNG Plus
  • Commission-free
  • Address
    93049 Regensburg / Westenviertel
  • Housing type
    Penthouse
  • Price
    €999,000
  • Floor
    4 upper floor (penthouse)
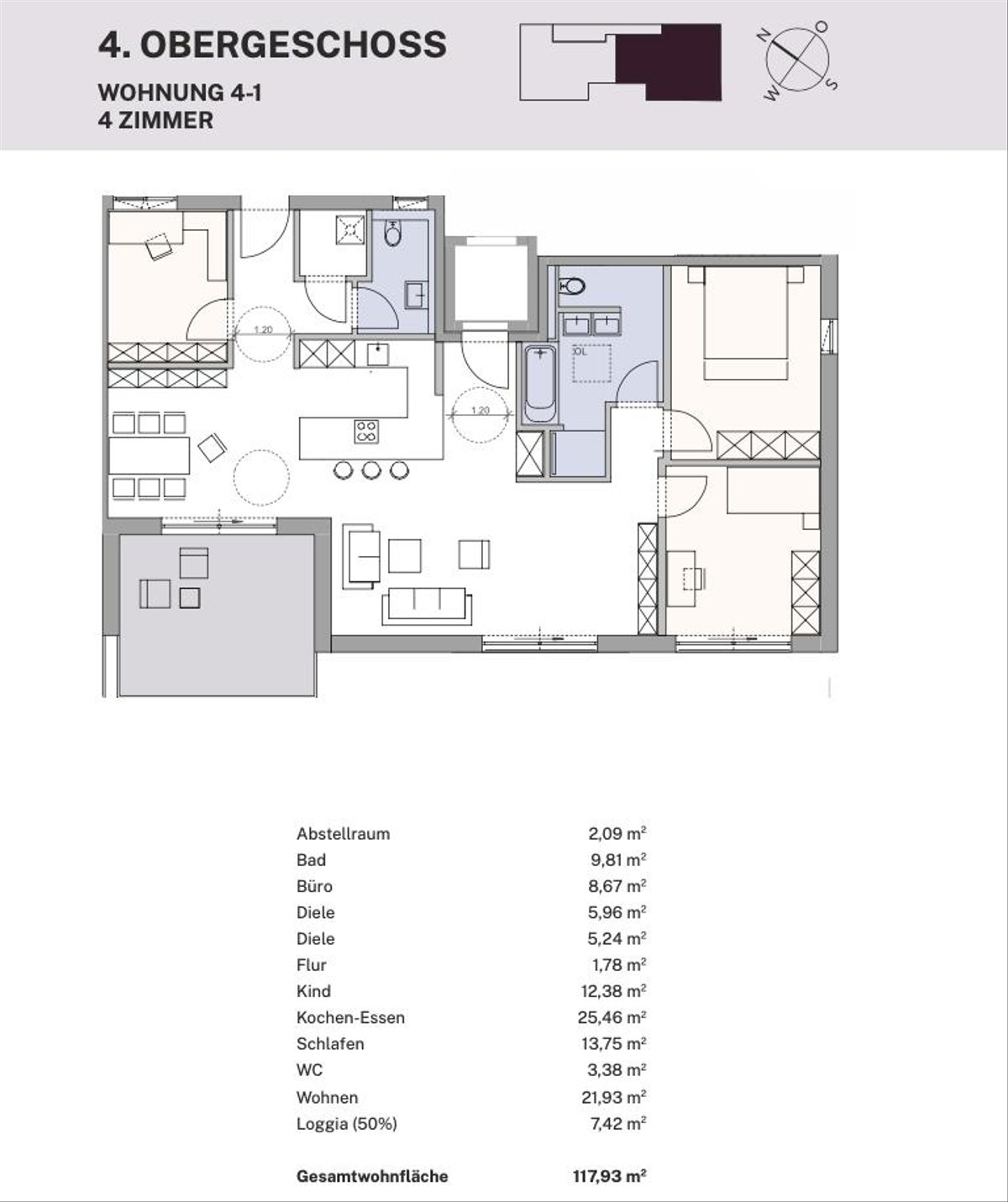
  • Number of rooms
    4
  • Bathrooms
    2
  • Bedrooms
    3
  • Living space
    117.94 m2
  • Balcony/terrace area
    14.84 m2
  • Year of construction
    2028
  • Underground parking space
    €39,000
  • Number of underground parking spaces
    2
  • ID
    290669
  • Provider property ID
    2129_6

Features

  • Basement
  • Bicycle room
  • Heating: electricity
  • Luxury Furnishings
  • Southwest-facing balcony/terrace

Location

The financing calculator for your home loan

You can use our financing calculator to quickly and easily calculate a loan for your property.

Financing example

Equity: 199.800 €
Debit interest commitment: 10 years
Repayment rate: 1 %
Monthly installment

€3.116

This residential unit is part of the
YORCK14 building project

Contact provider
*Required field

We treat your data confidentially. By submitting, you agree to the processing of your request in accordance with our privacy policy and general terms & conditions for customers.

Provider

Rennplatz Immobilien

Franz-von-Taxis-Ring 49, 93049 Regensburg