Project details
- 
        
        Address93049 Regensburg / Westenviertel
- 
        
        Housing typeCondominium, Investment
- 
        
        Pricefrom €235,000
- 
            
            Rooms1 - 4 rooms
- 
        
        Living space28 - 118 m2
- 
        
        Ready to occupy1st quarter 2028
- 
        
        Units30
- 
        
        CategoryUpscale
- 
        
        Project ID27820
Features
- Balcony
- Barrier-free
- Floor-level shower
- Rooftop terrace
- Real wood parquet
- Electrical roller shutters
- Triple-glazed windows
- Underfloor heating
- Basement room
- Controlled domestic ventilation
- Air-water heatpump
- Photovoltaic installation
- Branded sanitary ware
- Terrace
- Underground garage
- Video intercom
Location
 
    
				
				
	
								
	
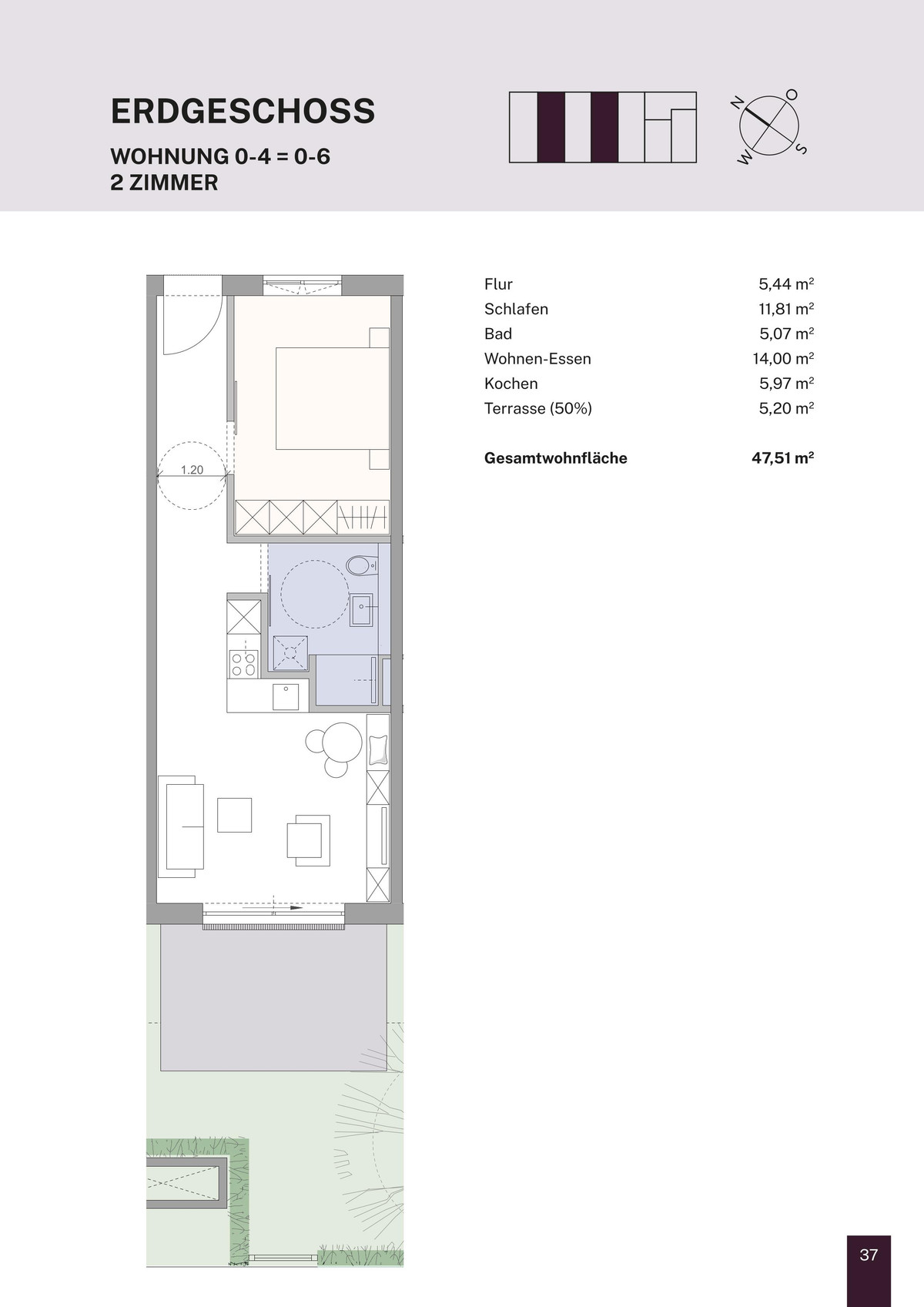
Residential units
Project description
 
 
 YORCK14
nachhaltige Wertanlage
Im begehrten Regensburger Westen entsteht mit YORCK14 ein Neubauprojekt, das modernes Wohnen, hohe Energieeffizienz und nachhaltige Wertanlage ideal vereint.
Das Projekt umfasst 30 hochwertige Eigentumswohnungen mit 1 bis 4 Zimmern und Wohnflächen zwischen ca. 28 und 118 m² - perfekt geeignet für Kapitalanleger, die auf langfristige Stabilität setzen, ebenso wie für Eigennutzer, die urbanen Komfort und moderne Architektur schätzen.
YORCK14 wird als Effizienzhaus 40 QNG PLUS realisiert und erfüllt damit höchste Standards in puncto Energieeffizienz und Nachhaltigkeit. Das Gebäude benötigt nur 40 % der Primärenergie eines vergleichbaren Referenzgebäudes - ein klarer Vorteil für Umwelt und Bewohner. Eine Photovoltaikanlage zur Eigenstromversorgung, kontrollierte Wohnraumbelüftung mit Wärmerückgewinnung sowie die massive Ziegelbauweise ohne Wärmedämmverbundsystem sorgen für ein gesundes Raumklima, niedrige Energiekosten und langfristige Wertbeständigkeit.
 
Für Kapitalanleger bietet YORCK14 außergewöhnliche steuerliche Vorteile: Dank der aktuellen Sonderabschreibung können in den ersten vier Jahren 20% des Gebäudewerts (5% p.a.) abgeschrieben werden. Hinzu kommt die degressive AfA, die in den ersten zehn Jahren weitere 5 % p.a. vom Restbuchwert ermöglicht.
Das bedeutet: Bereits nach vier Jahren sind rund 40 %, nach sechs Jahren etwa 60 % des Gebäudewerts steuerlich abgeschrieben - ein enormer Vorteil für alle, die in den kommenden Jahren hohe Einkünfte erzielen und gezielt Steuern sparen möchten.
Zusätzlich profitieren Käufer von einem zinsgünstigen KfW-Darlehen über 150.000 € mit einem Effektivzins von nur 1,13 % (Stand 10/2025) - ein starkes Argument in der aktuellen Marktphase und ein weiterer Hebel für ein renditestarkes, nachhaltiges Investment.
Auch die Ausstattung überzeugt: Echtholzparkett aus Eiche, Fußbodenheizung, bodengleiche Duschen und Marken-Sanitärausstattung von Villeroy & Boch sorgen für ein stilvolles Wohngefühl. Jede Wohnung verfügt über private Außenflächen - Terrassen, Balkone oder Dachterrassen mit sonniger Süd-West-Ausrichtung, im Erdgeschoss jeweils mit einem Privatgarten.
Ein Aufzug von der Tiefgarage bis in alle Etagen, großzügige Kellerabteile, ein Fahrradraum sowie eine Tiefgarage mit 22 breiten Einzel-Stellplätzen (bis zu 3 m) und 3 Außen-Stellplätze (optional mit E-Ladestation) sorgen für zusätzlichen Komfort. Das Penthouse mit direktem Aufzugszugang rundet das Angebot exklusiv ab.
 
Highlights
- Effizienzhaus 40 QNG Plus
- Hohe Abschreibung für Anleger (ca. 50% des Gebäudewerts bereits nach 6 Jahren!)
- Zinsgünstiges Darlehen i.H.v. 150.000 € ab 1,13% (Stand: 10/2025)
- Mittelständischer Bauträger mit über 30 Jahren Erfahrung und mehreren Hundert realisierten Einheiten
- Barrierefreie Wohnungen
- Echtholz-Parkettböden aus Eiche
- Fußbodenheizung mit Einzelraumsteuerung
- bodengleich geflieste Duschen
- Sanitärausstattung mit Markenprodukten (z. B. Villeroy & Boch)
- Video-Sprechanlage
- Kontrollierte Wohnraumlüftung mit Wärmerückgewinnung
- Kunststoff-Fenster mit Dreifach-Verglasung (große Schiebetüren)
- Elektrische Rollläden
- Alle Einheiten mit Privatgärten und Terrassen, Balkone oder Dachterrassen in Süd-West-Ausrichtung
- Aufzug von der Tiefgarage bis zur Wohnung (Penthouse mit direktem Zugang)
- Großzügige Kellerabteile
- Großer Keller für Fahrräder und Lastenräder
- Tiefgarage mit 22 Einzel-Stellplätzen und 3 Außen-Stellplätze (opt. mit E-Ladestation)
- Luft-Wasser-Wärmepumpe
- PV-Anlage zur Eigenstromversorgung
- Ziegel-Massiv-Bauweise ohne Wärmedämmverbundsystem
- Sehr ruhige Lage
 
 Lage
Regensburg-West überzeugt durch hohe Lebensqualität und optimale Anbindung. Die wirtschaftliche Stärke der Region macht den Standort zusätzlich attraktiv - sowohl für Kapitalanleger als auch für Eigennutzer.
Legal notice: the information on the construction project is an editorial contribution by neubau kompass AG. It is for information purposes only and does not constitute an offer in the legal sense. The content offered is published and checked by neubau kompass AG in accordance with § 2 TMG. Information on any commission obligation can be obtained from the provider. All information, in particular on prices, living space, furnishings and readiness for occupancy, is provided without guarantee. Errors excepted.
 
                                 
                                 
                                 
                                 
                                 
                                 
                                 
                                 
                                 
                                 
                                 
                                 
                     
    
	 
    
	 
    
	 
    
	 
    
	 
			 
			 
			 
			 
			 
			 
			 
			 
			 
			 
			 
			 
			 
			 
			 
			 
			 
			 
			