This residential example is part of the green v Viernheim building project

green v | Haus A + D

  • Efficiency House 40
  • Address
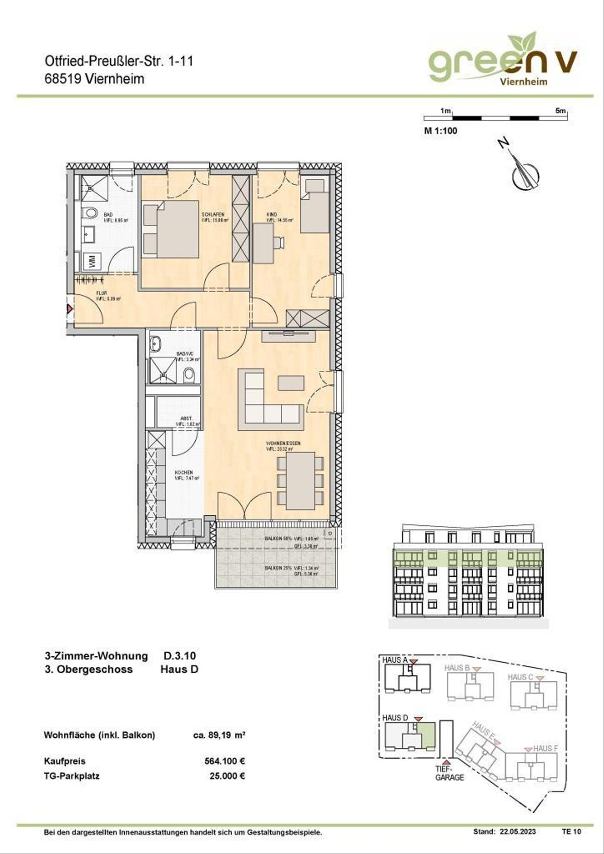
    Otfried-Preußler-Straße 1 - 11, 68519 Viernheim
  • Housing type
    Upper-floor apartment
  • Price
    €564,100
  • Commission for buyers
    provisionsfrei für den Käufer
  • Floor
    3 upper floor
  • Number of rooms
    3
  • Living space
    on request
  • ID
    240992
  • Provider property ID
    W011/G1/E3/TE10_D.3.10

Location

Show on map

The financing calculator for your home loan

You can use our financing calculator to quickly and easily calculate a loan for your property.

Financing example

Equity: 112.820 €
Debit interest commitment: 10 years
Repayment rate: 1 %
Monthly installment

€1.737

This residential unit is part of the
green v Viernheim building project

Contact provider
*Required field

We treat your data confidentially. By submitting, you agree to the processing of your request in accordance with our privacy policy and general terms & conditions for customers.

Provider

DIRINGER & SCHEIDEL WOHN- UND GEWERBEBAU GmbH

Wilhelm-Wundt-Straße 19, 68199 Mannheim

DIRINGER & SCHEIDEL WOHN- UND GEWERBEBAU GmbH