DIRINGER & SCHEIDEL WOHN- UND GEWERBEBAU GmbH

green v Viernheim

87 new build condominiums

  • Efficiency House 40

Project details

  • Otfried-Preußler-Straße 1 - 11, 68519 Viernheim
  • Condominium
  • from €439,900
  • 2 - 4 rooms
  • 66.48 - 113.25 m2
  • Upon request
  • 87
  • Upscale
  • 24968

Features

  • Balcony
  • Real wood parquet
  • Electrical roller shutters
  • Underfloor heating
  • Photovoltaic installation
  • Branded sanitary ware
  • Garden share (partial)
  • Terrace
  • Underground garage
  • Heat pump

Location

Show on map

Further info

Purchase price excl. underground parking space: €25,000


The green v Viernheim construction project achieves the classification of climate-friendly residential building with QNG and is supported with the special funding program 297/298 of the KfW banking group. This qualifies it for an exceptionally good interest rate program that brings significant cost savings for you as a buyer. For more information, see the "KfW Funding".

section

Residential units

Contact provider
*Required field

Number of rooms

We treat your data confidentially. By submitting, you agree to the processing of your request in accordance with our privacy policy and general terms & conditions for customers.

Project description

Image new build property condominiums green v Viernheim Steinweg Laatzen

Sustainable homes,
surrounded by green

1st construction phase, house A and D

Residential pleasure and quality of life - outside and inside

On the northern outskirts of Viernheim, in the popular new development area Bannholzgraben II, we are realizing the project green v Viernheim (pronounced green five) as a general contractor in several construction phases. The Roman five (v) in the name green v Viernheim symbolizes our five new residential buildings, but can also – read as a V – stand for Viernheim. Green refers on the one hand to the green surroundings and on the other hand to the particularly sustainable energy concept.

Overall concept

  • 6,000 m² area
  • Five buildings
  • 87 condominiums
  • 2 to 4 rooms
  • Approx. 44 m² to 139 m² of living space
  • Balconies, terraces and garden areas facing southwest
  • Special energy concept

1st construction phase, house A and D

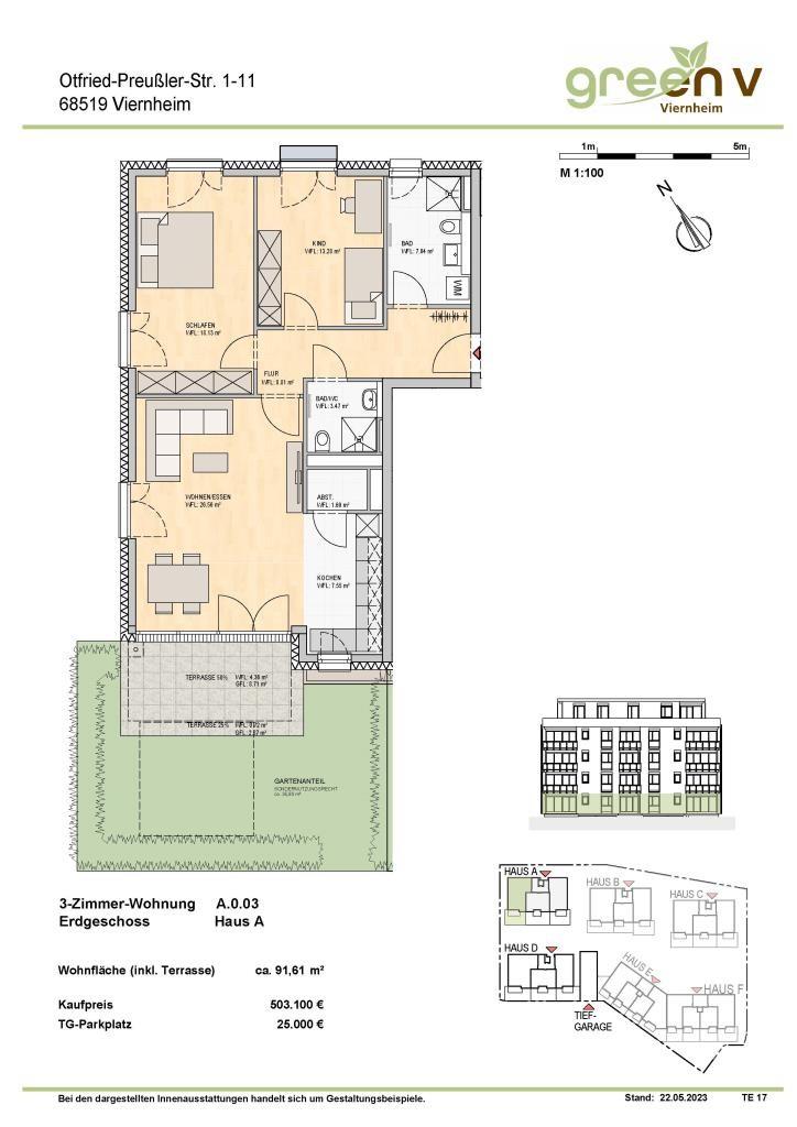
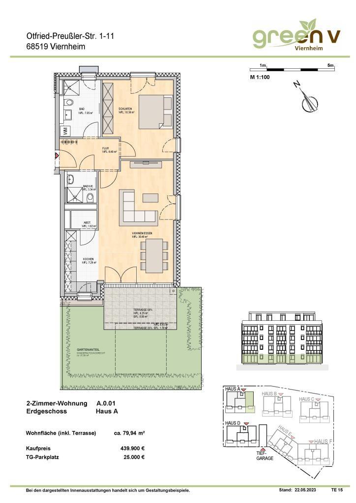
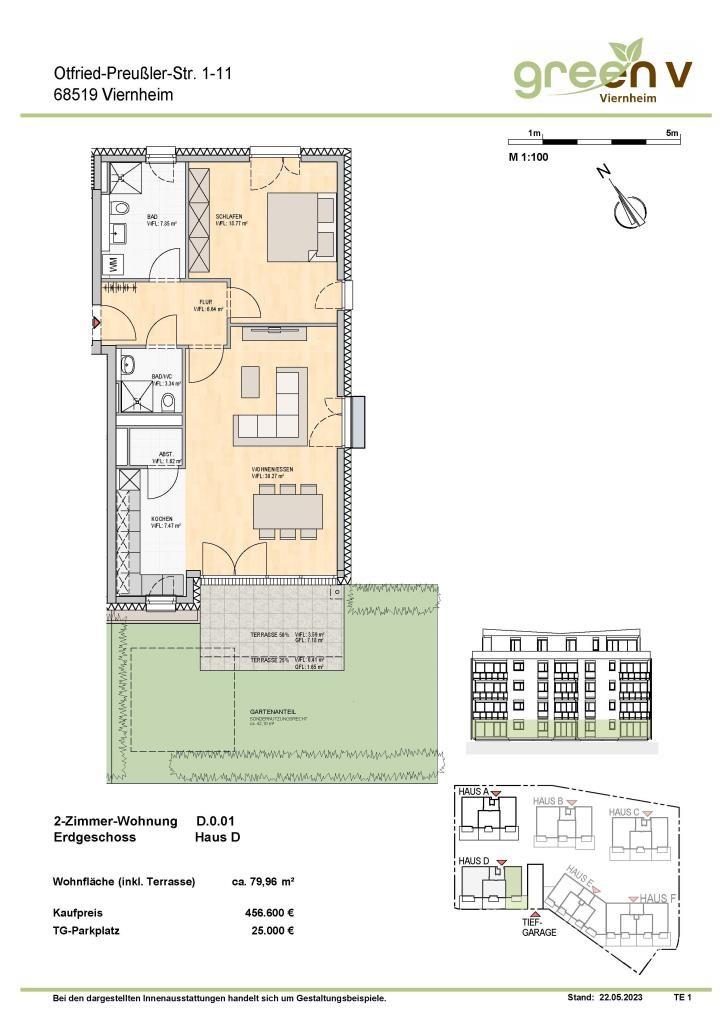
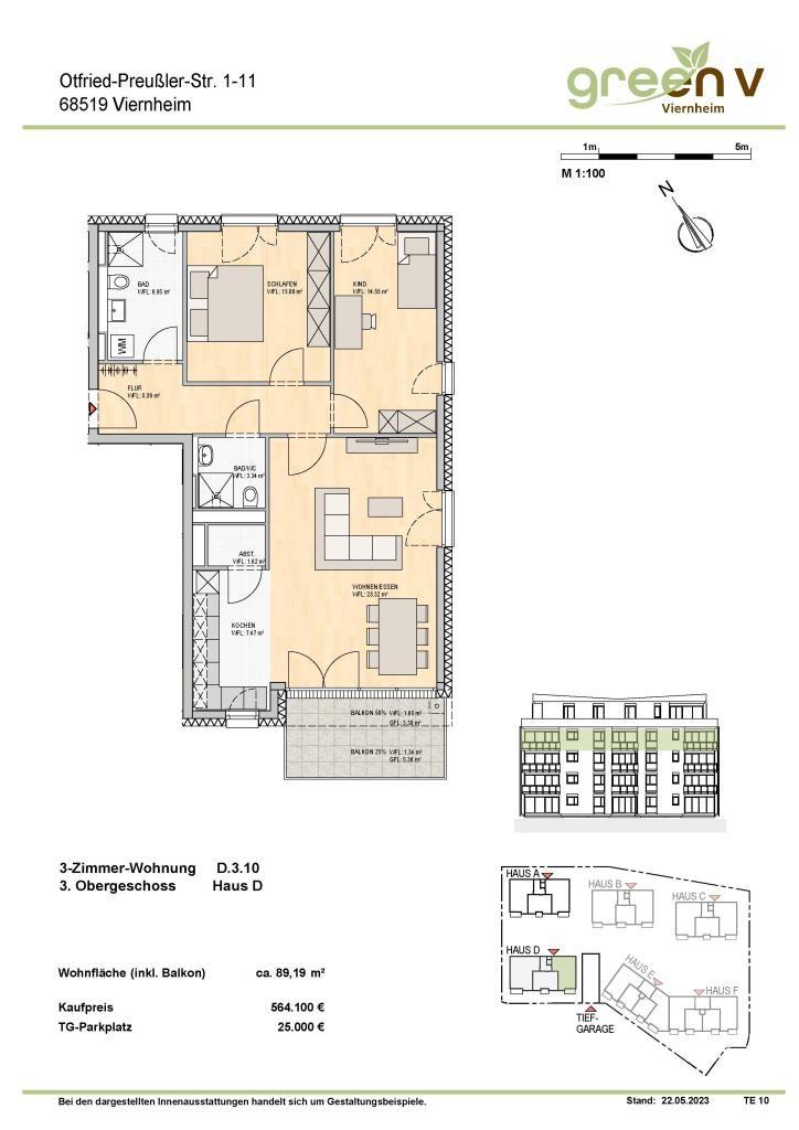
In the first construction phase, houses A and D are being built, each with 14 attractive 2 to 4 room condominiums and living areas of approx. 60 m² to 126 m². The buildings each have four floors above ground (ground floor to 3rd floor), "on top" there is a recessed staggered floor with two attractive penthouse apartments each with wonderful roof terraces.

A well thought-out room layout and practical storage space offer you excellent opportunities to realize your individual needs in your rooms. All apartments have balconies or garden areas with a southwest orientation, which invite you to linger until the evening hours.

All houses are connected by a common underground car park and offer enough space for 112 parking spaces. In the basement there are the apartment cellars and technical rooms. The garbage rooms and the bicycle parking spaces for visitors are easily accessible in the outdoor facilities, near the house entrances.

Image new build property condominiums green v Viernheim Steinweg Laatzen

Modernity
meets sustainability

The architecture

The attractively designed exterior facade in shades of cream and brown blends in unobtrusively with the surrounding area, with its numerous green spaces and fields. Generous rows of windows and a special plaster structure - so-called broom finish - give the facade elegance and lightness.

The access routes to the individual buildings convey an inviting atmosphere that continues from the entrance areas to the apartments. Inside the area, a neighborly meeting place is being created with well thought-out paths and green areas, seating and a playground.

The energy concept

A special feature in green v Viernheim is the sustainable and efficient energy concept: Current climate protection standards are implemented for the apartments, which protect the environment and save resources. Against this background, no fossil fuels are used. Heat and hot water are generated using heat pumps, which draw a proportion of their electricity requirements from the PVT modules (photovoltaic and solar thermal) on the roof. These modules are PV collectors, which also have a heat exchanger installed on the back. In this way, the heat pumps can silently extract heat from the environment via a brine circuit. The heat pumps then provide hot water and energy-efficient heating in the houses. The apartments are heated by underfloor heating using hot water.

The innovative heat pump technology also allows the rooms to be cooled down by approx. 2-3°C compared to the outside temperature in summer temperatures. In order to lower the room temperatures in the apartments, the floor can be tempered by means of the room thermostats if desired from an outside temperature of approx. + 25°C. After a central switchover at the heat pumps, cooled water flows through the pipes laid in the floor, if required, in the opposite direction to the heating concept. The floor temperature control means that heat is dissipated from the rooms in summer. This happens exclusively without air circulation and therefore without noise and drafts in the rooms. Most of the energy required to cool the water circuit in the pipe network can be obtained from the photovoltaic system on the roof.

KfW funding

Our construction project green v Viernheim achieves the classification of climate-friendly residential building with QNG and is supported with the special funding program 297/298 of the KfW banking group. This qualifies it for an exceptionally good interest rate program that brings significant cost savings for you as a buyer. You can find more information in our flyer (PDF, 4.7MB).

Top of page
Image new build property condominiums green v Viernheim Steinweg Laatzen

Construction and outfitting
for sophisticated demands

Our high-quality construction, using carefully selected materials, also ensures a high level of domestic comfort in green v Viernheim.

Here are some examples:

  • Solid construction with high-quality sand-lime brick
  • Elevator shafts with increased wall thickness to reduce noise transmission
  • First-class thermal insulation composite system
  • Electrically operated roller shutters
  • Underfloor heating and underfloor cooling that can be regulated separately for each room
  • Timeless and robust oak parquet
  • Comfortable bathrooms with shower area tiled to the floor
  • High-quality sanitary amenities, selected tiles from well-known manufacturers
  • Lockable window and balcony door handles on the ground floor
  • Preparation for awnings in all apartments
  • All apartments are barrier-free in accordance with the Hessian Building Code (HBO) from the public traffic areas to the apartment entrance
  • 20% of the apartments (of the entire construction project) will be barrier-free
  • Common underground car park for all five buildings with 112 parking spaces
  • Rolling grille gate with remote control
  • Video surveillance at the entrance to the underground car park
  • E-mobility: At least 6 underground parking spaces are planned, additional parking spaces can be equipped
  • Climate-friendly residential building with QNG (KFWG-Q)*

Tell us about your special requests

Of course, we are also happy to consider your individual special requests for an additional charge. Our many years of know-how and the efficient bundling of planning and execution construction management within our group of companies pays off for you in many ways: there is always a contact person for all concerns, fair prices and constant monitoring during execution by our competent project and construction management team .

*The KFWG - Q level is achieved when a sustainability certificate is issued for an efficiency house or efficiency building 40 that the compliance of the measure with the requirements of the "Quality Seal Sustainable Building Plus" (QNG-PLUS) or "Quality Seal Sustainable Building Premium (QNG-PREMIUM) confirmed. Source: Federal portal, https://www.bmwsb.bund.net

Image new build property condominiums green v Viernheim Steinweg Laatzen

In the middle of the Rhine-Neckar metropolitan region
and well connected

Viernheim

Viernheim is in Hesse, but borders on Baden-Württemberg to the west, south and east. With around 34,000 inhabitants, it is the second largest city in the Bergstraße district in southern Hesse and has excellent BAB connections. Whether by bike, public transport or car: the nearest larger cities of Mannheim, Heidelberg and Weinheim an der Bergstrasse can be reached in a very short drive.

Good infrastructure with short distances

The city center invites you to go window shopping, you will find numerous restaurants and cafés to linger.

In the middle of the city is the Apostle Church, built in 1900 - an impressive landmark of Viernheim. Schools and kindergartens, doctors, banks and shops for everyday life are within walking distance or can be reached by bike. All shopping enthusiasts will get their money's worth in the Rhein-Neckar-Zentrum, one of the largest shopping and leisure centers in the region. The Kinopolis and the new indoor skydiving in Viernheim are also in the immediate vicinity.

Nature lovers appreciate the fishing lake, the bird park and the climbing forest with adjacent playground and extensive forest paths as popular excursion destinations.

Legal notice: the information on the construction project is an editorial contribution by neubau kompass AG. It is for information purposes only and does not constitute an offer in the legal sense. The content offered is published and checked by neubau kompass AG in accordance with § 2 TMG. Information on any commission obligation can be obtained from the provider. All information, in particular on prices, living space, furnishings and readiness for occupancy, is provided without guarantee. Errors excepted.

Provider

DIRINGER & SCHEIDEL WOHN- UND GEWERBEBAU GmbH

Wilhelm-Wundt-Straße 19, 68199 Mannheim

DIRINGER & SCHEIDEL WOHN- UND GEWERBEBAU GmbH